SOYOUZ EN GUYANE
 

EPCU POUR SOYOUZ

L'EPCU, c'est l'ensemble de préparation charges utile Ariane. Au CSG, il assure la préparation, l'intégration des satellites incluant le remplissage en ergols. Il sert en général un mois avant les lancements. L'EPCU se compose de 4 complexes, le S1, Payload Processing Facility (PPF) situé au centre technique du CSG, le S3, Hazardous Processing & Upper Composite Integration Facilities (HPF/UCIF) et le S2-S4, Hazardous Processing Facilities (HPF) pour les moteurs solides et les systèmes pyros sur la BLA et enfin le S5, Payload/Hazardous processing facilities (PPF/HPF). Le complexe est complété par des installations auxiliaires, le Propellant Storage Area (ZSE), le Pyrotechnic Storage Area (ZSP) et le laboratoire d'analyse chimique situé près des différents bâtiments EPCU.

Le S1 est le premier EPCU du CSG. Il a été utilisé dès le début des années 1980 pour Ariane 1 et 3 puis 4. Il est chargé de l'intégration des satellites grâce à ces 2 salles blanche de 490 et 860 m2, salle de stockage et laboratoire.

       

Les bâtiments S2, S4 et S3 sont situés dans la zone d'assemblage de l'ELA 2. Les S2, S4 Ils assurent le stockage des moteurs d'appoint à combustible solide, leur mise en froid, leur vérification aux rayons X et leur préparation avant transport au bâtiment S3 pour assemblage avec le satellite.
Le S2 est réservé à la préparation des moteurs d' appoint des satellites (hall de 100 m2). Les 6 bâtiments PY et PR permettent le stockage des propulseurs dans un lieu conditionné et extérieur au S2.
Le S4 est le bâtiment qui permet de vérifier l' homogénéité des propulseurs à poudre avant intégration sur le satellite dans le S2. Les S2 et S4 ne sont plus utilisé depuis l'arrivée du S5.

       

Les bâtiments S3A et B permettent d'assurer le remplissage des satellites en ergols ainsi que l'intégration du moteur d'appoint avec le satellite. Il permet l'intégration de grosses charges utiles comme le composite des lancements doubles. Deux halls séparés par un sas commun permettent d'assurer ces deux fonctions.
Le S3B permet le remplissage en ergol dans le hall HR et l'encapsulation dans le hall HN.
Le S3C abritent les équipes lors des opérations de
remplissage. Le S3E sert pour les opérations de passivation et de décontamination des équipes et des outils. Le S3A accueille les charges de la classe Ariane 1,2 et 3, le S3B ceux de la classe Ariane 4.

   

Le S5 est utilisé depuis 2001. Il regroupe trois grandes salles blanches reliées par des couloirs où le satellites peut être pris en charge dès son arrivée jusqu' au transfert vers le bâtiment d'assemblage. Le bâtiment peut accueillir jusqu' à 4 satellites de télécommunication ou 8 des séries "Constellation".
_ Un premier bâtiment S5 C de 700 m2 permet les travaux d' intégration non dangereux en classe 100 000. il est équipé d' un pont roulant de 30 tonnes et d' un accès par sas de 300 m2 (porte de 20 m). 
_ Le second S5 B de 300 m2 permet le chargement en combustible (jusqu' à 10 tonnes de capacité).
_ le troisième S5 A de 400 m2 permet lui le chargement en combustible de petit satellite (4 tonnes de capacité).
Le passage entre les différentes salles blanches est possible par des sas de 225 m2 de 12 m de haut protégés en classe 100 000.
En outre, le S5 est équipé de 1000 m2 de bureaux. 

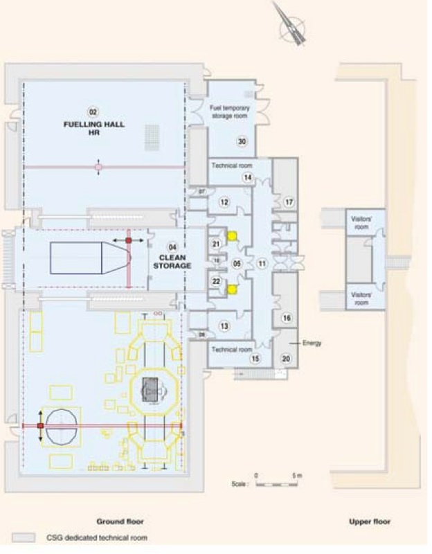
LE S3B FREGAT

Les charges utiles Soyouz comme Vega ou Ariane 5 sont intégrées dans le S5. A la sortie, le satellite rejoint le S3B où il est mis sous coiffe puis assemblé avec l'étage Fregat préalablement rempli en ergols. L'ensemble part ensuite pour la ZLS sur une plate forme dédiée.

Le S3B accueillait les activités liées à Ariane 4 jusqu'en 2003. Le bâtiment a servit pour du stockage par la suite grâce à sa salle propre. Soyouz a permit de le réhabiliter pour les opérations de remplissage de l'étage Fregat et d'encapsulation des charges Soyouz ainsi que le remplissage des satellites proprement dits.

Le S3B se présente comme 2 halls séparés par un sas de 128 m2 (18 x 6 m). Le hall HR, 328 m2 sert au remplissage de l'étage Fregat, l'autre de 141 m2, le HN sert pour l'intégration du satellite sur Fregat et à l'encapsulation. Un bâti d'intégration dit KMTO occupe la plus grande place du hall.

La rénovation du S3B a permit de remplacer les ponts roulants (175 kN) et refaire la résine des sols, le système de traitement des effluents et l'installation de colonnes de lavage U (Hydrazine, UDMH, MMH) et N (N2O4, MON) et la réfection des 2 cuves existantes en cuves accident U et N. On a aussi créer 2 cuves "process" U et N pour traiter les rejets liquides et réaménager le réseau et les voiries d'accès VRD. Enfin il a fallu remettre à niveau les installations de climatisation, courant forts, courants faibles et sécurité. Pour finir, le système de sauvegarde a été "update" et équivaut celui du S5. Pour le repos des ingénieurs russe, des bureaux et une zone de repos a été aménagé.

Le S3 sert aussi de stockage de l'ATV avant son intégration dans le S5.

       

Le hall HN mesure 20 m sur 20 pour 19 m de hauteur. Le stand fregat pèse près de 70 tonnes. Des pieux de 20 mètres ont du être installé en dessous dans le sol.

La CU est préparée au S1 ou au S5 et remplie d'ergols, la coiffe et l'étage Fregat dans le MIK. Les 3 parties se retrouvent dans le S3B pour l'encapsulation. Le Composite Supérieur CS ainsi constitué mesure 12 m sur 4 pour un poids de 9 à 16 tonnes. L'ensemble est transféré par route sur 15 km du sas de l'EPCU S3B jusqu'au pad. APCO Technologies a réalisé pour ce transport le PFRCS, Plate Forme Routière Composite Supérieur équipé de 2 groupes électrogènes redondants alimentant des groupes froids eux mêmes redondés. Le chargement du PFRCS se fait dans le sas du S3B. Il faut près de 3 heures pour rallier le pad par la route. Une fois la route refaite, le trajet pourra se faire en 2 heures.