RETOUR A LA PAGE D'ACUEIL

CHRONOLOGIE APOLLO

LE VAISSEAU APOLLO 

COMMAND MODULE APOLLO BLOCK 2

Le Command Module est conçue selon le principe de la double paroi, avec une coquille interne et externe. La coquille interne est l'habitacle des astronautes et la coquille externe le bouclier thermique. L'espace les séparant est garni de fibres isolantes assurant la protection contre les micrométéorites, le rayonnement solaire et les radiations des astronautes. D'une masse de 5625 kg, il est de forme conique avec pour diamètre de base 3,85 m et une hauteur de 3,65 m, l'angle au sommet du cône est beaucoup plus élevé que sur les cabines Mercury ou Gemini permettant une rentrée dans l'atmosphère à la seconde vitesse cosmique.  

Le CM est constitué de trois parties, l'avant, le compartiment de l'équipage et et l'arrière. La partie avant abrite les composants du système de récupération en mer ELS et deux moteurs de contrôle négatif. Le compartiment de l'équipage abrite les trois couchettes des astronautes, le tableau de bord et les équipements électroniques. La partie arrière abrite le système de moteur de contrôle en orbite et ses réservoirs associés. Un bouclier thermique en acier inoxydable nid d'abeille enveloppe ses trois éléments.

Le premier CM Block 2, le 101 pour Apollo 7. 
La couleur bleuté est du à un film de protection. Des panneaux protègent les hublots. 

LA PROTECTION THERMIQUE

L'extérieur du module est protégé des conditions extrêmes de température que le véhicule rencontrera pendant son voyage. C'est l'ensemble du module qui sert de bouclier thermique assurant la protection contre les énormes écarts de température rencontrés pendant le voyage allant de moins 280 °C à plus 5000°C lors de la rentrée dans l'atmosphère. La chaleur dégagée par la rentrée du CM dans l’atmosphère génère 86 000 kW-h d’électricité, assez pour alimenter les lumières de Los Angeles pendant 108 secondes. 

La chaleur de l' ascension (+ 1200°C) est principalement absorbée par le Boost Protective Cover BPC une structure en fibre de verre et aluminium peinte en blanche qui recouvre le module au lancement. Le BPC est attaché en permanence à la tour de sauvetage LES et s' éjecte avec elle. L' isolation entre les coquilles interne et externe et le contrôle de la température est assuré par le sous système de contrôle environnemental, protégeant l' équipage et les équipements de bord. 

   

Le bouclier thermique est divisé en trois parties, le fond constituant le bouclier arrière, la structure tronconique, ou bouclier de cabine et le bouclier avant abritant le système de récupération parachutes. Ces trois éléments sont fabriqués séparément et assemblés sur la coquille interne. La structure portante est nid d'abeille d'acier inoxydable brasé entre deux tôles de ce même métal et un revêtement thermique en nid d'abeille de fibre de verre dont les alvéoles sont remplies d'une résine phénolique. La résine évacue la chaleur engendrée par la pénétration dans l'atmosphère en se vaporisant progressivement selon le principe de l'ablation. Cette résine est maintenue en place par le nid d'abeille.
L'épaisseur du bouclier change selon l'endroit à protéger allant de 6 à 70 mn, l'épaisseur de l'âme en acier variant de 13 à 64 mm. Afin de préserver la tenue du bouclier pendant le vol, il est recouvert de trois pellicules successives un mastic d'étanchéité évitant l'évaporation de la résine (un joint poreux), une peinture qui la garantit de l'humidité lors des manipulations au sol et un film plastique aluminisé en Mylar le protégeant du rayonnement solaire.   

CM protection thermique 03.jpg (179056 octets) Le bouclier thermique conçue par Avco Corp. Le maillage en aluminium nid d'abeille (à gauche) et la structure des alvéoles avec la résine époxy (370 000).
Après la mission, l'état du bouclier.  

En bas, le bouclier thermique avant et après 

CM protection thermique 01.jpg (119562 octets) CM protection thermique 02.jpg (96841 octets)
CM block2 bouclier 01.jpg (86450 octets)

CM block2 bouclier 02.jpg (190067 octets)

 

Le BPC Booster Cover Protective est un capot composé de fibre de verre laminée à âme en nid d'abeille et de liège posé sur la coque du CM et qui le protège lors de l'ascension avant la mise en orbite. Il est composé de 2 partie, la partie inférieure et supérieure laquelle sert de support aux 4 entretoises de la tour LES, Launch Escape System chargé d'éjection le CM en vol en cas d'anomalie. Un système pyrotechnique assure l'éjection, et une attache en tension relie le BPC à la sonde d'amarrage. Lors d'un vol normal, l'attache est cassée au larguage de la tour LES. En cas d'abandon en vol, l'attache retire la sonde et l'anneau d'amarrage de la tour et du BPC afin de libérer les parachutes.

La tour LES est larguée avec le BPC à 89 900 m d'altitude, soit environ 30 secondes après l'allumage du deuxième étage (S-II). Avec le Saturn IB, c'est un peu plus bas ou environ 20 secondes après l'allumage du deuxième étage (S-IV).

LE BPC mesure 3,3 m de haut, 3,96 m de diamètre pour une masse de 318 kg et est composé de fibre de verre laminée à âme nid d'abeille et de liège

LE COMPARTIMENT AVANT

Le compartiment avant tronconique est une zone autour du tunnel d'amarrage. Il est séparé du compartiment équipage par une cloison et recouvert par la protection thermique avant. Le compartiment est divisé en quatre segments de 90° qui contiennent l' équipement de récupération (parachutes, antenne) deux moteurs de manœuvre RCS, et le mécanisme du bouclier thermique. La partie avant permet aussi d' attacher la tour de sauvetage par l' intermédiaire de quatre points.
Le compartiment avant est éjecté au retour à 7600 m d' altitude pour permettre le déploiement des parachutes.

CM block2 compartiment avant 01.jpg (924843 octets) CM block2 compartiment avant 02.jpg (1341218 octets)

LE SYSTEME DE RECUPERATION

Lors des premières études sur le CM, il était prévu de faire revenir le module sur le continent et non sur la mer comme les cabines précédentes. Afin d'atténuer le contact avec le sol, on pensa l'équiper de rétro-fusée comme les cabines soviétiques. Finalement pour limiter les risques, l'amerrissage est conservé en dépit de l'inconfort qu'il occasionnait aux astronautes et du déploiement naval qu'il nécessitait.     

Le système de récupération ELS Earth Landing System comprend un parachute extracteur et des parachutes principaux destinés à ralentir la cabine avant le retour en mer. Dans une descente normale, le couvercle de la partie avant du module est éjecté à 7296 m d' altitude suivit 1, 5 seconde après par les deux parachutes extracteur de 5 m de diamètre destinés à orienter et décélérer la cabine (de 480 à 280 km/h). A 3000 m, ils sont largués et les trois gros parachutes sortent. Trois parachutes "pilote" de 2 m permettent se les sortir en les éjectant du compartiment de récupération afin qu'ils se déploie à distance respectueuse les uns des autres. Ils s' ouvrent partiellement pendant 10 secondes avant de se déployer complètement (25,3 m de diamètre). Les parachutes principaux sont attaché ensemble ce qui permet au CM d'amerrir sous un angle de 27,5°. Deux parachutes sur trois permettent d'assurer un amerrissage sans incident.

Après l'amerrissage, les parachutes sont largués et le système de récupération est mis en opération. Il comprend trois ballons gonflables destinés à remettre la cabine droite en cas de retournement à l'impact, un phare clignotant, un émetteur VHF et un marqueur sur mer (vert). Les deux antennes VHF situé près des parachutes sont déployées 8 secondes après leur sortie. L'une transmet par des bips la position du module, l' autre permet les communications voix avec le bateau de récupération.

Lors des rentrées dans l'atmosphère, les astronautes ne portent pas leur scaphandre ou du moins leur casque verrouillé. Seule la rentré d'Apollo 7 était prévue avec l'équipage en scaphandre, mais Schirra s'y est opposé, leur tympans aurait pu être endommagé lors de la descente. Collins remercia le fait de ne pas avoir de scaphandre, car comme le module avait tendance à piquer du nez à l'amerrissage et à se retourner, il ne voulait pas se trouver suspendu à son harnais dans une tenue imposante. Lors d'ASTP, le port du scaphandre aurait évité que l'équipage ne soit incommodé par le reflux de carburant du système de manoeuvre purgé un peu trop tôt.

CM recuperation 01.jpg (89184 octets)

CM test retour.jpg (36624 octets)

Le CM peut atterrir et amerrir, mais les Américains ont préféré amerrir.

CM block2 recuperation 02 A9.jpg (224182 octets) CM block2 recuperation A11.jpg (240839 octets)

C'est le DoD qui est chargé de récupérer le CM Apollo et l'équipage. Pour cela il mobilise un porte avion, une dizaine d'hélicoptères et des équipes de nageurs professionnels. Généralement trois hélicoptères sont déployés sur site. Le premier se positionne sous le vent en arrière du CM , à 3-4 m d'altitude et à une vitesse de 10 noeuds. Il déploie un premier nageur à 25 m du module équipé d'une ancre flottante . Tournant dans le vent, il monte à 12 m d'altitude et se place sur le coté gauche en arrière (225°) à 45 m de distance pour limiter les effets de gêne des pales de son rotor. Une fois l'ancre de flottaison attaché au CM, l'hélicoptère recommencent la même manoeucre du début pour déployer le collier de flottaison qui sera placé autour du module et mettre en place les radeaux pour l'équipage. Après ses opérations, l'hélicoptère se place en position d'attente à 100-120 m en arrière sur le coté gauche. Intervient l'hélicoptère chargé de récupérer l'équipage. Un 3eme engin est en secours positionné en arrière à 70 m sur le coté droit (120°).

Le rôle de la marine dans le programme Apollo fut de récupérer le module de commande et son équipage de retour de la lune. Les hélicoptères de la marine avaient pour mission de localiser et sécuriser le CM avant d'en extraire son équipage pour le ramener à bord du porte avion ancré non loin de là.  Lors des premiers vols automatiques Mercury,  c'est l'hélicoptère Sikorsky S58 (H-34D) qui été chargé de récupérer les cabines. Lors du vol MA6, john Glenn a été récupéré par un Piasecki H25 sur le USS Noa.

Par la suite, pour les derniers vols habités Mercury, en commençant par MA7, Gemini et Apollo, c'est le Sikorsky HSS-2/SH-3 Sea King qui est chargé de cette opération. C'est un engin bi turbine qui a pu être adapté pour la récupération des astronautes grâce à une cabine très spacieuse. Notons que pour MA9, c'est un hélicoptères S-56 (H37A) qui a récupéré Cooper..

gemini GT5 S65-45289.jpg (98516 octets)

Le SH 3 "64" lors de la mission Gemini 5

Les hélicoptères SH-3 destinés à la récupération des cabines Apollo ont été spécialement modifié pour leur mission et remis en état par la suite. 6 hélicoptères ont été modifié pour la opérations de récupération, l'équipement sonar a été enlevé pour faire de la place dans la cabine pour l'équipement SARAH (Search and Rescue and Homing) et l'équipe médicale. Le SH 3 est aussi équipé de caméras TV montées au dessus et au dessous de la porte latérale et d'une antenne en forme de H sur l'encorbellement. Ces hélicoptères sont peints selon les couleurs de la marine de l'époque, blanc sur le dessus et gris au dessous. La sortie des gaz des turbines est soulignée de noir contrairement au autres SH 3 de la marine. Les indications de danger sont inscrites dans un petit rectangle jaune sur la dérive verticale.

Ce sont les hélicoptères du HS 6 (Helicopter Anti Submarine Squadron) "indians" qui sont chargés de récupérer l'équipage d'Apollo 7 (SH 3 "55" pour l'équipage et le "66" pour les nageurs). Ces mêmes hélicoptères avaient assuré la récupération de Schirra et Cooper en 1962-63. Pour Apollo 8, 10, 11, 12 et 13, c'est le HS 4 qui pilote les opérations (le SH 3 "54" pour les nageurs d'Apollo 8, le SH 3 "53" pour les nageurs d'Apollo 11, le SH 3 "402" pour les nageurs d'Apollo 13).

ap13-70-HC-482.jpg (304502 octets)

Pour Apollo 9, c'est la HS3 avec le SH 3 54 qui récupère l'équipage à bord du SH 3 "51".

Pour Apollo 14, c'est la HS 6 qui reprend les opérations de récupération après une escale au Vietnam (SH 3 "501" pour les nageurs et "500" pour l'équipage). Pour Apollo 15 et les deux dernières missions, c'est la HC 1 (Helicopter Combat Support Squadron) qui gère les opérations (SH 3 "001 pour l'équipage et "003" pour les nageurs). Le HS 6 "indians" reviendra une dernière fois pour la mission ASTP en 1975. Un SH-3H SeaKing immatriculé 148999 a servit dans le film de R Howard Apollo 13 pour récupérer les astronautes.

ap14-S71-19476.jpg (634759 octets)

ap15-71-H-1259.jpg (222251 octets)

Le SH 3 des nageurs lors de la récupération d'Apollo 15

ap16-S72-36282.jpg (646144 octets)    ap17-S72-55974.jpg (382698 octets)

Récupération des équipages d'Apollo 16 et 17 par le SH 3 "001"

LE OLD 66

De tous les Sea King, le SH-3D immatriculé 152711 reste le plus célèbre en tant que "old 66". Livré à la marine en 1966 et entré en service la même année au HS 4 (Helicopter Anti Submarine Squadron), le "vieux 66" a assisté les équipages des 5 premiers vols lunaires, Apollo 8, 10, 11, 12 et 13. Assigné au "Yorktown Air Group 56, les hélicoptères du HS 4 d'Apollo 8 arborent sur la dérive verticale le nom de code "NU". De larges numéros sont aussi peint sur les cotés, comme sur le 66. Pour Apollo 9, le nom de code change en "NT" désignant le Air group 59. Le nom du porte avion USS Princeton est peint sur le dessus du fuselage. Sur l'avant du 66, un logo représente la récupération d'Apollo 8. Un autre sera ajouté après Apollo 10. Pour Apollo 11, le porte avion assigné est le USS Hornet et un 3eme logo Apollo est rajouté à l'avant. Entre Apollo 11 et 12, le 66 est assigné à d'autres missions et repeint avec un nouveau numéro (740). Pour Apollo 12, il retrouve son numéro 66, mais peint plus petit. Il est assigné au USS  Hornet/CVSG-59. Pour sa dernière mission, Apollo 13, le 66 est assigné au USS Iwo Jima et le "chapeau" du rotor ainsi que les bout des ailerons sont peintes en rouge. Sur la porte latérale, un dessin d'aligator vert a été rajouté à coté du hublot.

ap8-68-H-1449.JPG (294438 octets)    ap13-70-H-652.jpg (315021 octets)

Le "old 66" lors des récupération d'Apollo 8,13, 10 et 11

ap10-S69-21036.JPG (275655 octets)    ap11-KSC-69P-654.jpg (511287 octets)

Pilote du old 66 A8 Pilote du old 66 A10 Pilote du old 66 A11 Pilote du old 66 A12 Pilote du old 66 A13
Donald S. Jones Chuck B. Smiley Donald S. Jones  Warren E. Aut  Chuck B. Smiley
USS Yorktown, CVS-10 USS Princeton, LPH-5 USS Hornet, CVS-12 USS Hornet, CVS-12 USS Iwo Jima, LPH-2

Après Apollo 13, les hélicoptères de la HS 4 se partagent entre les mission au Vietnam et l'entraînement à San Diego. Le 4 juin 1975, le "old 66" s'envole pour une mission d'entraînement avec sonar au large de San Diego. Le sonar est ainsi descendu au bout d'un câble dans l'océan sous la surface de l'eau. Durant les premières heures, tout se passe normalement. L'hélicoptère devenant instable l'équipage décide de descendre le sonar un peu plus profond dans la mer. Malheureusement, tiré par le sonar, le "old 66 est entraîné par le fond. L'équipage sera récupéré sain et sauf et transporté vers un hôpital. Seul le pilote décèdera de ces blessures. Selon les rapports, la carcasse du Sea King giserait par 730 m de fond.  

 

CM test.jpg (107430 octets)    CM block2 construction 01.jpg (50177 octets)    CM block2 construction 02.jpg (53002 octets)

Tests du CM et fabrication à Downey chez North American.

LES ECOUTILLES

Le CM possède deux écoutilles, une sur le coté pour rentrer et sortir du module et une sur le dessus à l'avant utilisée pour aller et venir dans le LM quand il est amarré. L'écoutille latérale est d'une seule pièce (95 kg) "unified hatch", elle s'ouvre vers le dehors assurant l'étanchéité thermique primaire et secondaire. Elle est équipée d'un petit hublot de 23 cm, mais a été pré-équipé pour accueillir un sas. Le loquet de l'écoutille a été dessinée pour que la pression exercée contre la porte serve seulement  à augmenter la pression de fermeture du loquet. Le mécanisme de la porte prend en charge aussi le mécanisme qui ouvre la porte dans le BPC. Un assemblage de contrepoids constitué de deux bouteilles d' azote et d'un piston actionne l'écoutille et la porte du BPC pour l' ouvrir facilement. Dans l'espace, l'équipage peut ouvrir facilement l'écoutille sans le système de contrepoids, de piston et d'azote qui est évacué après le lancement. Une seconde bouteille d'azote peut être utilisée pour ouvrir l'écoutille après l'amerrissage. L'écoutille peut aussi être ouverte de l'extérieur. En cas de problème ou de déformation pendant l'ouverture, trois " cricks " sont prévus dans les outils des astronautes pour la maintenir fermée. 

L'écoutille latérale "unified hatch" modifiée après l'incendie d'Apollo 1

L'écoutille avant est sur le tunnel d'accès cylindrique à l'avant. Les astronautes l'utilisent pour passer du CM au LM par un passage de 80 cm de diamètre. D'un diamètre de 75 cm et pesant 32 kg, elle constituée de deux anneaux usinés et soudés sur un panneau en nid d'abeille. La partie supérieure est recouverte avec 1,7 cm d'isolant thermique et une couche de feuille d'aluminium. La partie inférieure possède six points de fermeture similaire à l'écoutille latérale et actionner par une poignée similaire à l'écoutille latérale. L'écoutille n'est ouverte qu'après équilibrage des pressions dans les deux vaisseaux. Elle est ensuite rangé dans les placards inférieurs du module avec la sonde d'amarrage.

La différence de base entre le CM BK1 et 2 est dans la structure secondaire. Le BK 1 n'était pas conçue pour les missions lunaires, donc il n'était pas équipé de système d'amarrage avec le LM. Le système d'amarrage "docking" est à l'avant de la cabine. Le bouclier thermique avant et les cotés sont similaire au 2 block. Le tunnel de liaison du BK est un cylindre de 75 cm de diamètre et 70 de hauteur. Le tunnel du BK 2 est un tronc de cône de 58 cm de hauteur environ. Le tunnel du BK2 est plus résistant structurellement.

La sonde d'amarrage est une structure conique en aluminium qui permet la jonction des modules de commande et lunaire selon la technique du "cône -entonnoir" . Elle est constituée de deux tiges qui coulissent l'une dans l'autre sur 25 cm, la tige intérieure supportant le cône de capture avec ses trois verrous. La sonde est montée en trois point sur l'anneau d'amarrage du module et peut être enlevé soit du coté CM soit du coté LM.

Pour l'amarrage du LM au CSM, Le pilote du CM, assis sur le siège de gauche regarde par son hublot de gauche la cible fixée sur le "toit" LM.

   

Le système d'amarrage CSM-LM est utilisé 2 fois dans le vol, pour la transposition du LM de l'étage S4B et au retour du même LM de la lune. Dans le premier cas, c'est le CSM qui est actif, dans l'autre le LM. L'approche des 2 vaisseaux doit être très précise. Les exigences en matière de vitesse d'amarrage et d'alignement pour le premier contact comprendront un une vitesse axiale (de fermeture) de 0,1 à 1,0 pied/sec, une vitesse radiale (transversale) de 0 à 0,5 pied/sec, une vitesse angulaire de 0 à 1,0 deg/sec, un alignement radial de 0 à 1,0 pied, un alignement angulaire sur l'axe X de 0° à 10°, et un alignement de rotation de -60° + 10°. Un membre d'équipage sans aide peut effectuer toutes les fonctions nécessaires pour effectuer le transfert de l'équipage dans les deux sens (CSM vers LM ou LM vers CSM). Le commandant assure l'approche grâce au radar de RV, aux moteurs RCS, un système de visée et d'alignement, un dispositif optique monté sur le hublots de RV du CM qui permet une vue directe de la cible posée à l'extérieure sur le "toit" du LM.

La manoeuvre d'amarrage consiste à rentrer le cône de capture de la sonde dans l'entonnoir de l'écoutille du LM. Pour la manoeuvre d'extraction du LM de l'étage S4B, le CM est actif, tandis que pour la manoeuvre de rendez vous en orbite lunaire, c'est le LM qui est actif. Le CM s'approche du LM, la tige supportant le cône de capture étant sortie au maximum. Dès que le contact est établi, les verrous du cône de capture s'enclenchent, c'est le "soft docking", la tige se rétracte permettant aux deux vaisseaux de se rapprocher. 12 verrous montés sur l'anneau d'amarrage du CM permettent d'assembler mécaniquement les deux véhicules, c'est le "hard docking". Après égalisation des pressions d'air, les 2 ombilicaux sont assemblés pour l'alimentation électrique de secours du LM. La  sonde est ensuite enlevée et stockée dans le fond du CM sous les sièges avec l'écoutille du CM. L'écoutille du LM est aussi enlevé et stocke dans le vaisseau.

  

Pour la dernière manoeuvre de séparation avec le LM, des charges pyrotechniques sont allumées afin d'éloigner les véhicules, le système d'amarrage restant solidaire du LM. 

CM block2 ecoutille 01.jpg (533357 octets)    CM block2 sonde.jpg (472413 octets)    CM block2 S68-50870.jpg (200744 octets)

L'écoutille avant et la sonde d'amarrage




Des poignes sont fixées sur le CM, elles ont pour but principal d'aider les astronautes lorsqu'ils doivent passer du CM au LM par l'espace en urgence et lors des EVA au retour de la lune. Elles sont fabriquées en aluminium 2024-T350 et recouverte de ruban thermique comme la coque extérieure. Elles mesure 30 cm de long et sont de formes "plates" sur Apollo 4, 6, 7, 8, 10 et 14 et  "rondes" 9, 11, 12, 13, 15, 16 et 17. On trouve sur le module de commande un anneau faisant office de poigné sur le tunnel d'amarrage (A), une poignée extensible sur la partie avant au dessus du hublot de RV (B), 4 poignées sur la coque externe (D) et une sur l'écoutille (C). Des petits disques de  Prométhium 147, un élément radioactif luminescent sont déposés sur les poignés afin que les astronautes puissent les voir dans le noir. Un projecteur (5 à 24 lux de lumière) placé sur une perche dépliable de 60 cm sur le module de service assurae l'éclairage de la zone autour de l'écoutille.

Un anneau fixé sur le tunnel d'amarrage du CM  fait office de poigné, il est maintenu par 8 supports chacun équipé d'un disque luminescent sur la face avant.

Les 4 poignés disposés sur la coque externe du CM, 2 au dessous de l'écoutille, une au dessous le hublot de RV et l'autre juste à coté.

 

 

LES HUBLOTS

Le module possède cinq hublots, deux sur les cotés de forme carrés (33 cm de coté) a 90° l'un de l'autre pour les observations et la photographie, deux pour voir devant pour les manoeuvres de RV en forme de triangle et un cylindrique sur l'écoutille du module. Ce dernier est en face de la couchette centrale. Ils sont constitués de panneaux internes et externes. L'intérieur est réalisé avec deux panneaux en verre de silice de 0,7 cm d'épaisseur séparé de 24 cm. L'extérieur est un panneau en silicone de 17 cm d'épaisseur. Chaque panneau externe est recouvert d'une couche de antireflet et chaque panneau interne d'une couche arrêtant les rayonnement IR et UV. Les hublots peuvent supporter une température de 1537 °C en moyenne et 1710°C en crête. Un voile d'aluminium est appliqué sur tous les hublots. Un jeu de miroir dans la cabine permet d'augmenter le champ de vision des astronautes. Un cache interne permet de faire le noir dans la cabine.

LE COMPARTIMENT EQUIPAGE

L'habitacle pressurisé est composé d'une structure primaire constituant la paroi interne de la cabine réalisé en tôles d'aluminium soudés recouverte d'un revêtement en nid d'abeille d'aluminium lui même recouvert de tôles d'aluminium collés. Ce sandwich en nid d'abeille a une épaisseur variant de 6 à 38 mm offrant un volume intérieur de 6,3 m3. Il comprend:  

Le compartiment de l' équipage offre un volume habitable de 6,3 m3, ce qui est beaucoup plus important que sur les cabines précédentes mais qui n'offre que très peu de place aux astronautes une fois les équipements mis en place. 

La température et la pressurisation est géré par le système ECS. Il contient le tableau de bord destiné à contrôler le vaisseau, les sièges des astronautes et tous l' équipement nécessaire à l' équipage. Il contient deux écoutilles, cinq hublots et diverses baie pour les équipements.

CM block2 compartiment equipage 01.jpg (1145545 octets) CM block2 compartiment equipage 02.jpg (907276 octets) CM block2 compartiment equipage 03.jpg (1376956 octets)
CM block2 compartiment equipage 04.jpg (942270 octets) CM block2 dessin.jpg (973284 octets) CM block2 compartiment equipage 05.jpg (877493 octets)

LE TABLEAU DE BORD ET LES INDICATEURS

CM block2 tableau de bord 01.jpg (44074 octets)

    

Le tableau de bord du CM, le MDC Main Display Console, il mesure 2,1 m de long sur 90 cm avec des extensions de chaque coté de 90 cm sur 60. Le pilote du CM a une vue générale de la planche de bord, le Commandant, une vue sur les indicateurs de vol à gauche et le pilote du LM, une vue à droite sur les indicateurs systèmes. Au centre, en haut se trouvent les "alertes", et au milieu, le contrôles des systèmes RCS, ECS et du moteur SPS.

La planche de bord est suspendu face aux astronautes. Mesurant 2 m de long sur un mètre de large, elle a  été arrangé pour les tâches de l' équipage. Ces tâches incombent au commandant, pilote du CM et du LM, sur les couchettes de gauche, du centre et de droite. Le pilote du CM fait office de navigateur principal. Les contrôleurs de vol Flight Controlers ou FC sont situés sur la gauche centre et coté gauche du Main Display Console, opposé au commandant. Ils incluent le contrôle des sous systèmes de stabilisation et de contrôle, la propulsion, la sécurité de l' équipage, atterrissage sur terre et les détecteurs d' urgence. Un des deux panneaux navigation et guidance est aussi situé à cet endroit, comme les indicateurs de vitesse, attitude et altitude. Le pilote du CM est face à la console et peut atteindre plusieurs FC, comme ceux sur le coté droit. Les indicateurs et contrôleurs directement a son opposé comprennent le management du carburant pour le système RCS, les alarmes, le contrôle environnemental et les systèmes de stockage cryogéniques. Le pilote du LM peut atteindre la partie centrale et celle de droite sur la console. Les système de communication, électrique, stockage de données, carburant des piles à combustible sont situés là, comme le sous système gérant le carburant du moteur SPS. Les interrupteurs sont protégés contre toute manoeuvres intempestive par des verrous de sûretés et des caches en métal et plastique. 

1966 CM tableau de bord panneau A.jpg (19615 octets)   1966 CM tableau de bord panneau B.jpg (30042 octets)   1966 CM tableau de bord panneau C.jpg (29013 octets)   1966 CM tableau de bord panneau D.jpg (34703 octets)

Tous les contrôles sont prévus pour être manipulé par un astronautes muni de gants. Les contrôles s' opèrent grâce à des interrupteurs à bascule, rotatif avec cran d' arrêt, à roulette et des poussoirs. Les contrôles critiques sont protégés d' éventuelles fausses manoeuvres par un cache en métal ou en plastique qu' il faut enlever avant. Les autres indicateurs et contrôleurs sont dispatchés dans la cabine en divers endroits sur les baies ou sur les couchettes (sextant, télescope). Le contrôle de l' environnement est situé dans la baie à gauche et tout le contrôle des eaux usées est dans la baie de droite. La manette de contrôle de rotation et de translation utilisé pour les manœuvres d' attitude, d' orientation est située sur un bras entre deux couchettes. Cette manette peut être monté au poste de navigateur sur la baie d' équipement en bas du module. Enfin, les alertes d' alarme utilisent des lumières clignotantes ainsi que des avertisseurs sonores dispatchés sur la console générale.

LES COUCHETTES

Les trois couchettes dans la cabine, réglables individuellement sont constituées de tubes en acier recouverts d' une solide étoffe imperméable en fibre de verre. Les couchettes reposent sur leur dossier et deux pistons atténuateurs réduisant l' impact à l' amerrissage. Les couchettes permettent aux astronautes de supporter les accélérations et décélération du vol, de piloter le vaisseau garce aux manettes de contrôle fixées sur les cotés, les "manches à balai" (Rotation Control 1 et 2). Les couchettes peuvent devenir des sièges avec la partie du bas qui s' incline à 85° pendant le lancement, l' entrée en orbite et l' amerrissage. La position à plat est utilisé principalement pour la couchette centrale, lorsque un astronaute veut se déplacer vers les baies de stockage inférieures.

Lorsque la couchette centrale est enlevée, la place disponible à bord permet aux astronautes de se tenir debout et d'accéder plus facilement au tunnel pour gagner le LM. La place libre permet aussi à deux d'entre eux de dormir dans des sacs de couchage (1,62 m) sous les couchettes gauche et droite avec la tête vers l' écoutille. Ils sont fixés sur les cotés du module. Lors des EVA, le siège central était aussi rangé dessous celui de gauche afin d'atteindre la poignée de l'écoutille.

Sur tous les vols Apollo Block 2, lors du lancement et pour la rentré, le commandant CDR est sur le siége de gauche, le pilote du module de commande CMP au entre et le pilote du LM, LMP à droite.
A l'époque où la NASA envisageait d'utiliser le CSM Block 1 pour les missions en orbite terrestre, il n'y avait pas forcément de pilote du LM, l'ordre était le même, seule la dénomination changeait, Commander pilote, Senior Pilot et Pilote. Pour les vols Skylab, on a le Commander CDR, le Pilot PLT et le Science Pilot SPL (qui remplace le pilote du LM). Pour ASTP, on a le Commander, le CMP et le Docking Module Pilot.

MISSIONS POSITIONS PRINCIPAL BACKUP
Apollo 1 CDR
SPT
PLT
Grissom
White
Chaffee
Mc Divitt (Schira)
Scott (Eisele)
Schweickart (Cunningham)
Apollo 7 CDR
PLT
LMP
Schirra
Eisele
Cuningham
Stafford
Young
Cernan
Apollo 8 CDR
PLT
LMP
Borman
Lowell
Anders
Armstrong
Aldrin
Haise
Apollo 9 CDR
PLT
LMP
Mc Divitt
Scott
Schweickart
Conrad
Gordon
Bean
Apollo 10 CDR
PLT
LMP
Stafford
Young
Cernan
Cooper
Eisele
Mitchell
Apollo 11 CDR
PLT
LMP
Armstrong
Collins
Aldrin
Lowell
Anders
Haise
Apollo 12 CDR
PLT
LMP
Conrad
Gordon
Bean
Scott
Worden
Irwin
Apollo 13 CDR
PLT
LMP
Lowel
Swigert
Haise
Young
Swigert
Duke
Apollo 14 CDR
PLT
LMP
Shepard
Roosa
Mitchell
Cernan
Evans
Engle
Apollo 15 CDR
PLT
LMP
Scott
Worden
Irwin
Gordon
Brand
Schmitt
Apollo 16 CDR
PLT
LMP
Young
Mattingly
Duke
Haise
Roosa
Mitchell
Apollo 17 CDR
PLT
LMP
Cernan
Evans
Scmitt
Young
Roosa
Duke
Skylab 2 CDR
SPL
PLT
Conrad
Kerwin
Weitz
Schweickart
Musgrave
Mc Candless
Skylab 3 CDR
SPL
PLT
Bean
Garriot
Lousma
Brand
Lind
Lenoir
Skylab 4 CDR
SPL
PLT
Carr
Gibson
Pogue
Brand
Lind
Lenoir
ASTP CDR
PLT
DMP
Stafford
Brand
Slayton
Bean
Evans
Lousma

(Schirra, Eisele et Cuningham pour A7, Borman, Lowell et Anders pour A8, Mc Divitt, Scott et Schweickart pour A9, Stafford, Young et Cernan pour A10, Conrad, Gordon et Bean pour A12, Lowel, Swigert et Haise pour A13, Shepard Roosa et Mitchell pour A14, Scott, Worden et Irwin pour A15, Young, Mattingly et Duke pour A16, Cernan, Evans et Scmitt pour A17, Conrad, Kerwin et Weitz pour SL2, Bean , Garriot et Lousma pour SL3, Carr, Gibson et Pogue pour SL4 et Stafford, Brand et Slayton pour ASTP).

Pour Apollo 11 Aldrin, le LMP est resté assis sur le siège central pendant le lancement parce qu’il totalisait plus d’heures d’entraînement en tant que CMP que Collins, nommé à ce poste bien après et qu'il s'était entraîner comme CMP pour l'équipage de réserve sur Apollo 8. Au retour, on retrouve dans l'ordre Armstrong CDR, Collins CMP et Aldrin LMP.
Pour la rentrée, les CDR et CMP échangeaient assez souvent leurs sièges (c'est-à-dire que CMP prenait la gauche et CDR était au milieu). Le CDR en siège de gauche pour l'entrée sur Apollo 7, 8, 9 et Skylab 2, 3, 4 et le CMP en siège de gauche pour l'entrée sur Apollo 10 à 17 et ASTP.

Pour la petite histoire, Gene Cernan occupait les cinq positions de « siège » dans le vaisseau spatial Apollo :

  • CM-droite comme Apollo 10 LMP
     
  • CM-gauche en tant qu'Apollo 17 CDR (lancement via TLI)
     
  • Centre CM en tant qu'Apollo 17 CDR (T&D via l'entrée)
     
  • LM-droite comme Apollo 10 LMP
     
  • LM-gauche en tant qu'Apollo 17 CDR

 

Seul le CDR a accès à la poignée "abort" du module de commande qui fait aussi office de THC (Translation Hand Control) et à sa droite la poigné RHC (Rotation Hand Control). Le passage du THC du mode "abort" en "auto pilot" se fait par rotation de la poigné dans le sens des aiguilles d'une montre. Le CMP a sur sa droite une seconde poigne RHC. Le CMP réalise toutes les manœuvres (il est entraîné à piloter le module seul dans le cas où ses deux compères ne pourraient revenir de la lune). Le CDR peut aussi prendre le relais en toutes circonstances, partageant son entraînement avec le LMP.  Sur Apollo 8, Borman, le CDR est resté sur le siège de gauche la majeure partie du vol. Pour les vols Apollo 11 à 17, le CMP est sur le siége de gauche pour la fin du vol.
Au lancement, aucun des membres de l'équipage ne voyait le ciel, le dehors à cause du BPC recouvrant le CSM Apollo, à part le CMP par la fenêtre de l'écoutille. Pour les derniers vols lunaires, dans les derniers BPC a été découpé une fenêtre circulaire afin que l'astronaute assis à gauche, le CDR ait également une vue à l'extérieur de l'avant pendant le décollage en plus de la fenêtre de la trappe.

LES ATTENUATEURS D' IMPACT

A l' impact sur la mer, la force de décélération du module dépend de la forme des vagues et de la vitesse de descente. Une grande partie de l' énergie (75 à 90%) est absorbée à l' impact dans l' eau par la déformation de la structure du module. Le système d' atténuation permet de réduire ses effets sur l' équipage. Il comporte une partie externe et interne. La partie externe est faite de quatre traverses qui s' écrasent (10 cm d' épaisseur sur 30 cm de long) sur le compartiment arrière. Ils sont réalisés en aluminium. Les parachutes principaux suspendent la cabine avec le même angle que ces traverses au moment de l' impact. La partie interne du système est constituée de huit structures connectées aux couchettes de l' équipage. Elles sont chargées d' absorber l' énergie par déformation.

LES EQUIPEMENTS PERSONNELS

Les équipements pour l' hygiène des astronautes comprennent des serviettes sèches ou mouillées pour la toilette, une brosse à dents et le système d' évacuation des déchets (solides, liquides et gazeux). Le système situé dans la baie droite stocke les scelles, élimine les odeurs, chasse les urines à l' extérieur et enlève les urines des scaphandres. En plus chaque astronautes possède un petit container (16 cm3) pour des effets personnels.

LES EQUIPEMENT D' AIDE

Ils incluent les dossiers de données, les outils, tablettes de travail, caméras, extincteurs d' incendie (situé à coté de la baie gauche avant) , masques à oxygène, trousses de médicaments (cachets et seringues) et sacs à déchets.

LES EQUIPEMENTS DE SURVIE

L' équipement de survie utilisé après l' amerrissage en cas d' urgence est situé dans deux sacs à dos dans la baie droite avant. Un des sacs contient trois radeaux gonflables, des filtres de carbone dioxyde, un marqueur de mer, une ancre et des chapeaux pour chaque astronaute. Les autres sacs contiennent le système de communication, les lumières de survie, les kits de dessalage de l' eau, une machette des lunettes de soleil, des gourdes d' eau et un kits médical (avec six bandages, six seringues, 30 cachets et un tube de pommade.

LES VETEMENTS DES ASTRONAUTES

Le nombre de vêtement portés par les astronautes varie selon les missions. Néanmoins il existe trois combinaisons de base, pas de scaphandre, scaphandre et sortie EVA. Sans scaphandre, l' équipage respire l' air de la cabine et porte le harnais avec les capteurs bio médicaux, les casques intercoms (baptisé " Snoppy "), les bottes et le vêtement de base. Le scaphandre pour les EVA est porté par dessus, avec les gants, le casques et les chaussures.

LES SCAPHANDRES

LA NOURRITURE ET L' EAU

La nourriture présente à bord de la cabine permet de donner 2800 calories à chaque astronautes par jour. Elle est du type dé hydratée ou concentrée et enfermée dans des tubes de plastique. Un tuyau avec une valve permet d' y ajouter de l' eau chaude ou froide et de réhydrater les aliments. Afin de différencier la nourriture de chaque astronautes, les sacs sont de trois couleurs rouge, blanc et bleu et munis d' étiquettes pour le jour .

LES BAIES D' EQUIPEMENT

Les baies d’équipement et de rangement disposées tout autour des couchettes sur les murs de la cabine. On trouvent les baies latérale de gauche et de droite , à coté des couchettes gauche et droites respectivement, les baies supérieures droites et gauches au dessus de ces mêmes couchettes, la baie centrale inférieure au pied de la couchette centrale et la baie arrière, derrière les couchettes contre la cloison. Elles contiennent tout ce qui est nécessaire à l'équipage pendant les 14 jours de la mission, allant de l' électronique à la nourriture. 

La baie centrale est celle qui abrite le plus d'équipements comme l’électronique de navigation et de guidage, le sextant et le télescope, l’ordinateur de bord et son clavier (DISK). Les sous système de communication sont aussi logés à cet endroit avec les 5 batteries, leur chargeur et les inverseurs. Des casiers de rangements renferment la nourriture et les équipements nécessaire aux astronautes.

La baie latérale de gauche abrite le système de contrôle environnemental avec ses réservoirs d’O2 et les panneaux de contrôle et d’affichage. Dans un petit coin peut être « stocker » l’écoutille lorsque le CM est amarré au LM. On trouve également dans cette baie le distributeur d’eau et le rangements des vêtements personnels.

La baie latérale droite abrite notamment le système d’évacuation des déchets solides et des urines. On y trouve également de la nourriture et divers équipements électroniques. A cette endroits sont rangés les scaphandres lunaires, les casques et les sacs dorsaux PLSS. Les baies supérieures permettent de stocker principalement les kits de survie, la trousse médicale, les optiques, la cible d’amarrage du LM et la bio-instrumentation des scaphandres.

Sur la cloison arrière sous les couchettes se trouvent les absorbeurs de CO2, les extincteurs, les cordes des sacs de couchage, les adaptateurs 16 mm pour le sextant ainsi que les caméras TV et leurs accessoires. On y trouve également les containers enfermant les échantillons lunaires, les sacs de décontamination, les appareils photos et les rouleaux de films, 3 écouteurs et les appareils servant aux exercices physiques.

LE SYSTEME DE GUIDAGE ET DE CONTROLE

Le vaisseau Apollo est guidé par deux systèmes interconnectés, le GNCS et le SCS. Le GNCS Guidance, Navigation & Control System Le guidage et la navigation sont traité au travers de trois éléments majeurs, inertiel, optique et informatique. Le SCS Stabilization & Control System opère dans trois voies : détermination de l' attitude du vaisseau (position angulaire), maintenir l' attitude du vaisseau et enfin contrôler la direction et la force du moteur SPS. L' ensemble est contrôlé par l' ordinateur central du module l' Apollo Guidance Computer réalisé à base de circuits intégrés datant de 1965. Il stocke des données dans des des mots longs de 15 bits plus un de parité et utilise 2000 mots dans une mémoire effaçable RAM et 36000 dans une ROM. Le DISK, Dispaly & Keyboard est une interface permettant aux astronautes de programmer l' ordinateur.  

LE SYSTEME DE TELECOMMUNICATIONS

Le système de télécommunication assure les communications voix, TV, télémétrie et poursuite entre le vaisseau et la terre, le CM et le LM et le vaisseau avec les astronautes en EVA sur la lune. Des micro-casques sont utilisés par les astronautes pour les communications par voix entre eux et le sol en VHF AM ou bande S. Les VHF sont utilisés avec le réseau de poursuite sol pendant le lancement, l' ascension et les phases de vol près de la terre. La bande S est utilisée pour les communications lointaines. Si les communications ne sont pas possible, un nombre limité de signaux audio peut être stocké sur une bande pour être transmise plus tard.

La structure et les sous systèmes du vaisseau spatial sont équipé de capteurs, sondes qui mesurent leur performance. Les données biomédicale, TV et de temps sont aussi collectées. Ces transmissions sont soit en direct avec le reste soit en différées ou enregistrées pour être dépouillées plus tard.

L' équipement radio fréquence sert à transmettre et à recevoir toutes les voix et les données télémétriques. Il consiste en deux transmetteurs VHF AM, un en bande S, un en bande X pour les RV.

Neuf antennes sont installées sur le CSM, sans compter celle de RV. Elles sont divisées en quatre groupes, VHF, bande S, récupération et phare. Les deux antennes VHF appelées cimeterre à cause de leur forme sont omnidirectionnelles et monté à 180° autour du SM. Il y a cinq antennes bande S, une montée en bas du SM et quatre située autour du CM écartée de 90°. Ces petites antennes sont utilisées près de la terre et en secours loin de la terre. L' antenne grand gain est déployée après séparation du SLA. Elle sert pour les transmissions lointaines. Des antennes pour la récupération sont situées au sommet du CM et sont déployées automatiquement dès l' ouverture des parachutes. Une de ces antennes est connectée aussi au système de phare VHF.

LE SYSTEME DE CONTROLE ENVIRONNEMENTAL

Le système de contrôle environnemental ECS est composé de 180 parties, soit 20 fois plus qu’un vulgaire climatiseur d’appartement. Il assure 23 fonctions dont la fourniture d’air climatisé, de l’air pour respirer, le contrôle du taux d’humidité, la ventilation des scaphandres, de la cabine, le filtrage de l’air, l’absorption du CO2, des mauvaises odeurs, l’évacuation des toilettes.

LE SYSTEME RCS "REACTION CONTROL SYSTEM"

Le système RCS est utilisé après la séparation du module de service et dans certain cas de vol avorté. Il permet un contrôle sur trois axes maintenant le module sur sa trajectoire pendant la rentrée, axe de roulis X, axe de lacet Z et axe e tangage Y. Il est constitué de deux systèmes redondants et indépendants pouvant opérer en tandem. En cas de panne, le système restant assure le contrôle pour terminer la mission. Les 6x2 moteurs RCS sont situés à l' extérieur du module, 5x2 à l' arrière (2+2, diamétralement opposés pour le lacet axe Z, 1+1 pour le tangage positif, axe Y, 2+2 pour le roulis, axe X), 1+1 sur l' avant pour le tangage négatif, axe Y. Il produisent une poussée de 37 kg chacun. Comme pour le module de service, il utilisent du MMH et de l'azote stockés dans 4 réservoirs et pressurisés par de l' hélium, placés à la base du module.

LE SYSTEME ELECTRIQUE

Le CM consomme en moyenne 2000 W. Il est alimenté en électricité soit par des batteries soit par les piles à combustible du module de service, de l'hydrogène et de l'oxygène liquide sont combinés pour donner de l'électricité et de l'eau. Les trois batteries (argent-oxyde de zinc) ne servent que lors de la rentrée après la séparation du module de service. Elles sont situé dans les baies de stockage inférieures. Elles sont rechargées après chaque utilisation pour être opérationnelle à la rentrée. Deux autres batteries complètement indépendantes des trois autres servent pour l'alimentation des systèmes de séparation. Trois convertisseurs sont chargés de transformer le courant continu des batteries (24 V) en courant alternatif 115-120 V 400 Hz sur trois phases. Un seul suffit pour l'ensemble du module. L'intérieur de la cabine est parcouru par 30 km de câbles, suffisant pour équiper 50 maisons à deux chambres.

 

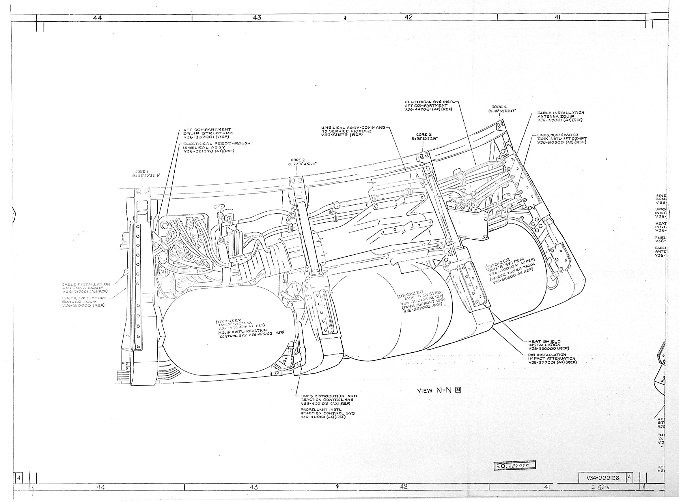
LE COMPARTIMENT ARRIERE

Le compartiment arrière est situé sur la périphérie du module à la base de la cabine tout près du bouclier thermique. C'est un anneau presque cylindrique divisé en 24 baies. Ils abrite les 10 moteurs de manœuvre RCS, les réservoirs de carburant, d'oxydant et d'hélium, les réservoirs d'eau, les amortisseurs du système d'atténuation d'impact et divers instruments. L'ombilical qui relie le CM au SM est aussi dans ce compartiment. Des panneaux permettent l'accès aux instruments.

CM block2 compartiment arriere 01.jpg (968913 octets) CM block2 compartiment arriere 02.jpg (756752 octets) CM block2 compartiment arriere 03.jpg (755987 octets)
CM block2 compartiment arriere 04.jpg (930901 octets) CM block2 compartiment arriere 05.jpg (1072078 octets) CM block2 compartiment arriere 06.jpg (686132 octets)
CM block2 compartiment arriere 07.jpg (1061952 octets)

Comment vit-on dans Apollo ? Selon les astronautes qui l’on habité, plutôt, mieux que dans les précédentes cabines. Les premières retransmissions TV montrent des astronautes  joyeux, faisant des cabrioles devant les caméras et s’amusant avec la nourriture. Sur Gemini, les astronautes restaient assis tout le long du vol. Dans Apollo, les astronautes peuvent quitter leur couchette se mettre debout et faire des exercices physiques dans un volume de 2x 2x 1,5 m, l’équivalent du volume offert par une voiture pour chacun.

La nourriture de bord a évolué depuis Mercury et la barre de céréales de Carpenter. Lors des missions Gemini, les astronautes emportaient des sachets remplis de nourriture hyophilisée  qu’ils rendaient comestible en ajoutant de l’eau. Le « sandwich » de Young et Grisson fut la seule tentative de passer de la nourriture non conventionné dans l’espace. Avec Apollo, la nourriture se consomme chaude grâce à de l’eau… chaude. La première « bouffe » dans l’espace a lieu sur Apollo 11 avec au menu café, hot dog, morceaux de lard, pêche en boite et cookies. Il faudra attendre Skylab pour avoir un réfrigérateur et déguster la première « crème glacée » en orbite.

L’atmosphère de bord douillette avec une température de 24°C était dans un premier temps composée d’oxygène pur sous une pression de 5 psi, soit 1/3 de la pression atmosphérique, comme les cabines précédentes, ce qui permettait de gagner de la masse sur le vaisseau et les équipements. L’origine de l’utilisation de l’oxygène pur dans le programme spatial date de Mercury. Bien que la cabine mono-place utilisait de l’oxygène pur, il avait été décidé d’utiliser pour les essais au sol, un mélange d’azote et d’oxygène mais à faible pression. Malheureusement ce mélange à basse pression est irrespirable pour l’homme et un technicien en a fait l’exemple. Depuis, l’emploi d’oxygène pur permet d’avoir toujours une atmosphère respirable. La seule précaution a prendre était d’éviter les sources de chaleur aux alentour. C’est avec Apollo 1 que le risque d’un incendie est devenu réel. Tout brûle dans l’oxygène pur. Après l’accident, la NASA opta pour un mélange  d’azote et d’oxygène pour les opérations au sol continuant à utiliser de l’oxygène pur dans l’espace. Au sol, l'atmosphère est un mélange 60% d'azote et 40% d'oxygène sous 16 psi, soit 1,1 bar, une pression légèrement supérieure à celle au niveau du sol pour permettre les vérifications d'étanchéité de la pression de la cabine. Durant l'ascension, la pression se réduit jusqu'à 5 psi, 0,34 bar, 1/3 de la pression atmosphérique et l'azote est purgé. Après la mise en orbite terrestre, les astronautes enlèvent leur casque, l'atmosphère est alors à 100% d'oxygène. L'équipage s'est préparé au sol pendant l'habillage à respirer de l'oxygène pur et à purger l'azote de leur sang. C'est la raison pour laquelle, ils sortent de l'O&C Building avec leur casque sur la tête. Sur la lune, la pression dans le scaphandre était de 3 à 5 psi dans le LM. Un test à 5 psi permettait de tester des fuites sur l'équipement. Avec ces pressions, les combinaisons étaient difficilement pliable par les astronautes et ils peinaient pour les déplacements et le travail sur la lune. 3,5 psi correspondait à une altitude de 3000 mètres, ce qui rendait les efforts physiques très difficiles, ce qui explique que l'on entendait respirer très forts les astronautes pendant les sorties.

Pour lutter contre les incendie, 2 extincteurs à mousse au fréon ont été installé dans le Block 2 après l'incendie d'Apollo 1. En août 1966, 3 extincteurs d'incendie pesant 6 kg ont été évalués pour l'engin spatial 012 et les vols ultérieurs. L'extincteur choisi serait arrimé au décollage pour les premiers vols habités. Lors de missions ultérieures, il serait monté sur des attaches. Ils utilisaient du Fréon FE 1301, l'agent d'extinction au sol le plus efficace. Cependant, dans des conditions spatiales, le produit chimique fonctionnait plus lentement et nécessitait un niveau de saturation plus élevé des matériaux inflammables. Pire encore, il générait un gaz pouvant, en quantités suffisantes, s'avérer fatal pour l'équipage. D'autres produits chimiques seraient bien sûr testés, mais cela prendrait du temps.

Après l'accident de 1967, la question s'est posé d'utiliser des extincteurs pour éliminer l'oxygène du triangle fatal d'incendie (combustible, source et oxygène). L'oxygène est également indispensable à la survie de l'équipage. Au cours des programmes Mercury et Gemini, il a été considéré que le moyen le plus rapide d’éteindre un incendie était de purger l’air de la cabine en éliminant l’oxygène nécessaire à tout incendie. Cela exigeait que l'équipage soit revétu de leur scaphandre. Cette option existait également pour Apollo alors que l'équipage était en scaphandre, mais n'était pas une option une fois les combinaisons retirées. Les extincteurs au dioxyde de carbone inonderaient la cabine de gaz toxique pour les astronautes et les extincteurs au halon éliminent l'oxygène mais sont aussi toxiques et  un irritant sérieux.

   

Extincteur utilisé sur Apollo et Skylab et disposition des système d'aide en secours dans le CM Apollo

Une étude attentive de l’intérieur du module de commande Apollo révélera quelques petits trous entourés de cercles rouges dispersés sur le tableau de bord et dans d’autres zones du vaisseau spatial. Ces trous étaient stratégiquement situés pour permettre l’insertion de la buse du pistolet à eau derrière le panneau afin d’inonder les zones identifiées comme sources potentielles d’incendie. Des masques a oxygène ont aussi pris place dans la cabine

Pour le petit coin, Apollo ne disposait pas des « luxueuse toilettes » du Shuttle ou d’ISS. Les astronautes urinaient et déféquaient dans des sacs ce qui exigeait un entraînement certain. Lors des EVA, des couches culottes permettaient de retenir leur besoin le temps des balades lunaires. Prendre une douche en apesanteur ne fut possible qu’à bord de la station Skylab (360 m3). Dans Apollo, les astronautes se lavaient avec des lingettes, mais ne pouvaient se laver les cheveux ou se raser.

 

LE SERVICE MODULE BLOCK 2
LE LUNAR MODULE
LE SPACECRAFT LM ADAPTER 
LE LAUNCH ESCAPE SYSTEM