|

Vue aérienne du lancement de Challenger
STS 6 en 1983 avec au premier plan le VAB
La zone VAB est le coeur du LC
39. Elle couvre une étendue de 4 km2 entre la Banana River à l' Est et l'Indian River à l' Ouest. Le Bâtiment d' assemblage VAB en est l' élément le
plus visible et le plus imposant. De toute les installations du KSC, c' est l'
élément le plus sécurisant puisqu' il est capable de résister à des vents
de plus de 200 km/ h. En cas d' alerte ouragan, le VAB est le seul refuge pour
les Orbiter qu' il soit assemblés à leur stack de propulsion ou pas.

Le VAB est orienté N-S avec les
baies de montage vers l' Est. Attaché par le coin S-E le centre de contrôle
des lancement, le LCC, Launch Control center et ses quatre salles de tir en vue
directe des pads de tir 6 km plus loin. Au sud du bâtiment, des parking
et le site où fut exposé le lanceur Saturn 5 aujourd'hui à l' abri dans son
centre le ASVC, plus au nord vers la Banana River. C' est dans cette zone que l'
on trouve d' autres bâtiment du centre spatial, comme l' OSB,
.
A l' Ouest, et dans le coin Nord
Ouest, les hangars de maintenance des Orbiters, les OPF, Orbiter Processing
Facility. Presque aussi grand que le LCC, il permettent de gérer trois Orbiter
en même temps. Juste derrière, le garage pour la maintenance des crawler transporter,
les "tortues" à chenille qui transportent les plateformes de lancement
mobile MLP jusqu' au pad de tir.
Au Nord, le parking des
plateformes de lancement mobiles, MLP Park site 1 (ouest) et 3 (est). Posés sur des piliers en acier de 7 m de
hauteur, elles sont restaurées après chaque lancement (lavage et peinture).
Encore derrière, le RPSF, Rotating Processing & Surge Facility où les
boosters SRB sont pré-assemblés avant d' être amenés dans le VAB.
Au Sud, la crawlerway, la super
route de gravier d' Alabama longue de près de 5 km sur laquelle se déplace le
crawler avec sa charge sur le dos, le MLP et le Shuttle assemblé jusqu' au pad
de tir 39.


Le VAB vue depuis le bassin de
déchargement début des années 80.
Les Low Bay sont dans le petit bâtiment à gauche et les deux portes en gris
donnent accès au High bay.
La cabine qui flotte dans l' eau est une maquette de la partie avant de l'
Orbiter utilisée pour des simulation en cas d' atterrissage forcé dans l' eau
ou sur terre.
Le VAB est l' un des plus grands bâtiments du monde. Conçue à l' origine pour l' assemblage des fusées Saturn 5 du programme Apollo en 1964, il a été modifié pour le STS au milieu des années 1970. Il est le cœur du complexe de lancement LC 39.
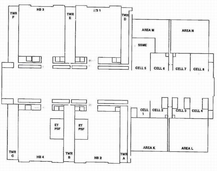
Le VAB est en fait deux bâtiments en un, mesurant 160 m de haut, 218 m de long et 158 de large et couvrant 325 hectares. Le plus imposant est celui abritant les quatre grandes baies, deux coté ouest et deux coté est Seules ces deux dernière ont été équipé pour le montage du Shuttle. Il mesure 160 m de haut, sur 134 m de large et 158 m de long. Le petit bâtiment (135 m de long, 83 m de large et 64 m de haut) accolé sur le coté sud abrite 10 petites baies de travail pour les sous ensembles.
Les grandes et les petites baies sont traversée par un couloir appelé " l' allée de transfert ". Cette allée est en fait le résultat d' un compromis pour obtenir une plus grande stabilité pour un coût raisonnable lors de la construction en 1964. D' une longueur de 218 m sur 28 m de large environ, elle prend 65% des charges dues au vent qui souffle parallèlement dans le sens Est/ Ouest. Son principal inconvénient est qu' elle réduit le passage aux grandes baies qui sont de chaque coté. Les opérateurs de grues devant soulever les éléments lanceurs au dessus de l' armature pour pouvoir les mettre en place sur la plateforme mobile dans les grandes baies.
Pour créer un environnement éclairé par la lumière du jour dans l' allée de transfert, 640 m2 de fenêtres (1,2 x 3,7 m) en panneau translucide ont été installées sur les façades sud et nord du bâtiment.

Les quatre High Bay de dimension identique, environ 50 sur 45 m de coté sur 160 m de hauteur permettent théoriquement le montage de quatre Shuttle en même temps grâce à deux grues de 250 tonnes sur pont roulant se déplaçant d' Ouest en Est entre les baies 4 et 3 et entre les baies 2 et 1. Pour le programme Apollo, seulement 3 baies furent équipées mais jamais réellement utilisées. Pour le programme Shuttle, seules les baies 1 et 3 ont été équipées.
Le système de manutention et de levage comprend tout d' abord un pont roulant à 50 m du sol, courant le long des 218 m de l' allée de transfert. Une grue de 175 tonnes de charge permet le déplacement des éléments des
petites baies vers l' allée de transfert.
Deux autres ponts roulant situés à 140 m du sol, équipés de deux grues de 250 tonnes de charge dans le grand bâtiment permettent des déplacements perpendiculairement de l' allée de transfert vers les grandes baies.

Le VAB est conçue pour résister à des vents de 200 km/h, avec un déplacement minimal au sommet de l' ordre de 15 cm avec un vent de 100 km/h.
Schéma d' implantation du VAB en
1981
C' est à partir de l' automne 1975 que le bâtiment cesse ses activités pour Apollo. 19 lanceurs Saturn ont été assemblés dans le bâtiment depuis 1966, dont 5 Saturn 1B à partir de 1972 pour le programme Skylab. Sur ces 19 lanceurs, 17 sont partis dans l' espace et deux sont restés à terre
(Saturn 500 F et Saturn 1B AS 209).
Quelques chiffres:
__ Volume: 3664885 m3.
__ Acier: 98590 tonnes,
__ Béton: 49696 m3, dont 23000 pour la chape au sol
__ Fondation: 4225 piliers de 40 cm de diamètre enfouis à 49 m dans le sol
__ Air conditionné: 9000 tonnes,125 ventilateurs sur le toit,
__ Matériels de levage: 140 ascenseurs, un pont roulant de 175 tonnes et 2 de 250 tonnes,
__ Habillage:100796,5 m2 de panneau d' aluminium isolé,6503 m2 de panneau plastique,
__ Les portes: les ouvertures des grandes baies en forme de T inversé mesure 139 de haut, 45 m de
large à la base et 22 m au sommet. 7 portes ( 22 x 15 m) s' ouvrant verticalement du bas vers le haut
et 4 autres s' ouvrant horizontalement en permettent l' accès.

Vue du toit du VAB photo Peter Ailward

Aménagement du VA en 1993 et post 2000

Avec l'arrêt du programme STS en 2011, le VAB est
aménagé pour recevoir le lanceur
SLS Artemis. La HB 3
est modifié pour l'assemblage du SLS en 2019, la HB2 est donné à Boeing
pour l'assemblage du "stage core" du SLS avant son intégration en baie 3
et la HB 4 reste à la NASA. |