RETOUR A LA PAGE D'ACUEIL

CHRONOLOGIE
SPACE SHUTTLE

LE SPACE LAUNCH COMPLEX 6 "SLICK SIX"

UN PAD DE TIR CALIFORNIEN POUR LE SHUTTLE

V19 PAYLOAD DESERVICE OMCF North VAFB

L'OMCF, désigné V19 est l'équivalent des hangars OPF du centre Kennedy en Floride. Il se trouve à quelques centaines de mètres de la piste. Ce bâtiment est chargé de la préparation de l'Orbiter et sa dépollution (deserving) après une mission.

L'OMCF en septembre 1984, près à recevoir l'Orbiter Enterprise. C'est un bâtiment constitué de 2 zones, un hangar de de 61 m sur 105, haut de 31 mètres et une aire technique de 62 m sur 48 , haute de 5 m. Un mur de béton de 16 m de haut sépare la partie hangar, aire technique.

A son arrivée dans le bâtiment, l'Orbiter est mis sous des vérins et positionné à l'horizontale pour faire face aux plateformes de travail. L'OMCF assure la mise en sécurité des explosifs de bord, la purge et la mise à sec des moteurs SSME, la ventilation des gaz haute pression, la vidange des ergols toxiques et cryogéniques, le déchargement des charges utiles et le transfert des données de bord au ordinateurs sol. Les pods OMS et RCS sont démontés dans le bâtiment mais renvoyés au KSCpour les inspections. L'OMCF assure aussi l'entretien et les réparation entre les vols, protection thermique, câblages électriques, chargements de la cabine. Ces opérations terminés, les plateformes de travail sont écartées, le transporteur "Cometo" est positionné dessous la carlingue, l'Orbiter abaissé puis l'ensemble est sortie du hangar pour être dirigé vers la zone Sud de la base, le SLC 6 à 27 km de là. La seules charges utiles que l'OMCF intégrera à l'horizontale sera le Spacelab européen. Les autres "payload" seront intégrées à la verticale sur le pad. Adjacent à l'OMCF, le Orbiter TPS Refurbishment chargé de réparer les tuiles thermiques de la carlingue et d'en fabriquer de nouvelles.

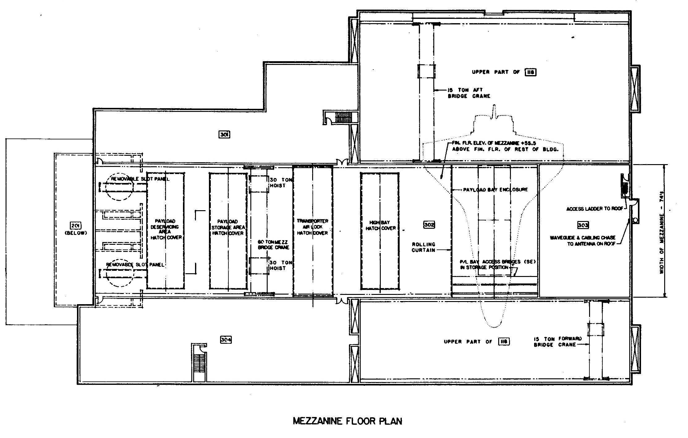
L'OMCF est en environnement contrôlé, Class 100 000. Il est équipé de grue sur pont roulant de 60 tonnes avec une grue de 37 tonnes pour hisser les "payload". Une autre grue de 10 et 15 tonnes assurent la manutention des modules.

   

   

Vue en coupe du OMCF avec l'Orbiter à l'horizontale à droite et ses rideaux qui permettent d'isoler la soute dans un environnement propre. Une grue de 60 tonnes sur pont permet le déchargement des "payload" entre l'Orbiter, le "transporter airlock", la zone de stockage des "payload" et le puits de dépollution. Des panneaux assurent la protection contre les éventuelles explosions ou accident sur les charges utiles, raison pour laquelle le puits et ses 2 cellules ont été construit en sous sol.

       

Enterprise dans l' Orbiter Maintenace Checkout Facility, l' OPF de Vandenberg. Les roues de l'Orbiter sont placées sur des plaques anti sismiques, capable de résister à un tremblement de 7 sur l'échelle de Richter, la Californie étant régulièrement le siège de petits tremblements de terre. Les points d'attache des portes de soutes dans le bâtiment peuvent refermer les portes en cas de tremblement. Dans l'OCMF, une maquette en bois du bras RMS et un modèle de qualification de l'antenne Ku sont installés dans la soute. Un berceau est placé pour tester le système de charges utiles dans la soute une fois sur le pad. Comme Enterprise devrait rester 3 mois dans le bâtiment, les pods OMS sont enlevés. ces maquettes servent pour les opérations d'acheminement des Orbiter lorsque les vrais pods sont absents. De nouveaux pods seront acheminés du centre de Johnson, à Houston pour Enterprise.

 

 

LE SLC 6, 1979