|
UN
PAD DE TIR CALIFORNIEN POUR LE SHUTTLE
PAYLOAD PREPARATION ROOM
Les charges utiles destinées à être
intégrées verticalement dans la soute de l'Orbiter sont amenées
dans le bâtiment de préparation, le Payload Preparation Room, PPR, une
structure de béton et de métal fixe d' une hauteur allant de 13 à 31 m et
situé au sud du pad.


Les charges utiles rentrent par un sas au travers d'une porte de 7,3 x 9,5 m situé à l' Ouest
du bâtiment au niveau 64 offrant une aire de travail de 11,8 sur 39,4 m. A l'
intérieur deux grues de 5 tonnes sur pont roulant à 14 m de hauteur permettent
de déplacer les différents éléments des satellites. Une porte de 9,5 m de
large sur 11 m de haut permet l'accès à la grande baie.
Cette grande baie permet un accès au trois cellules d' intégration sur le
coté Sud en offrant une surface de travail de 11,8 m sur 57,9. Une grue de 75
tonnes permet le déplacement des charges. La hauteur de la baie est de 34 m.
Les trois cellules de préparation des satellites comme la grande baie offrent
des conditions de travail en classe 100 000. Mesurant 13,8 m par 17,3, elles sont
desservit par la grue de la baie ainsi que par trois grues individuelles de 5
tonnes situé à 28,3 m de haut. L' accès aux cellules se fait par des grandes
portes de 8,4 m de large. Grâce à 6 plateformes de travail, elles permettent un
accès facile aux différentes parties des satellites. Seules deux cellules
ont été équipées par l'USAF pour les premiers vols Shuttle de Vandenberg.
L'isolation des cellules est réaliser électro magnétiquement (100 dB
d'atténuation).
La salle de transfert est une extension de la grande baie sur 9 m mais à 21 m
au dessus du sol.

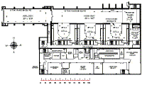
Le PPR avec de gauche à droite, le sas d'
entrée, la "high bay" et les cellules d' intégration et la salle de
transfert à droite. Le PCR est plaqué contre la salle de transfert.
Le petit bâtiment accolé à la grande baie abrite les bureaux et salles de
contrôle.
En 1993, le PPR est rebaptisé IPF, Integrated
Processing Facility par la société SSI et ITT qui signe un contrat pour
l'utilisation du bâtiment de l'USAF.
Désormais ce bâtiment servira pour la préparation des charges utiles commerciale
ou privées.
Payload Preparation Room, vue de coté. |
Payload Preparation Room, vue ouest. |
Payload Preparation Room, vue de dessus. |

L' entrée du PPR (ici on retire le payload
strongback du Shuttle dans les années 90).

Le sas d' entrée du PPR.

Vue de la "high bay", à gauche
l' entrée principale (porte rouge) donnant sur le sas et une des trois cellules
d' intégration (porte bleu) et à droite, la sortie Est donnant sur la salle de
transfert. Une autre porte de cellule est visible en jaune.

Cellules n° 1 d' intégration des
satellites.


Cellule n°1 intégration du satellite
Landsat dans les années 1990

Salle de transfert, en haut la partie basse
et en bas le niveau 166 et la porte de sortie.


Les salles techniques:
En haut, de gauche à droite, salle de conférence et de contrôle.
En bas de gauche à droite, salle de détente et de support technique client

La cellule 3 du PPR devenu IPF vue ici en aout
2021 pour le processing du satellite Landsat 9
|