RETOUR A LA PAGE D'ACUEIL

CHRONOLOGIE ARIANE

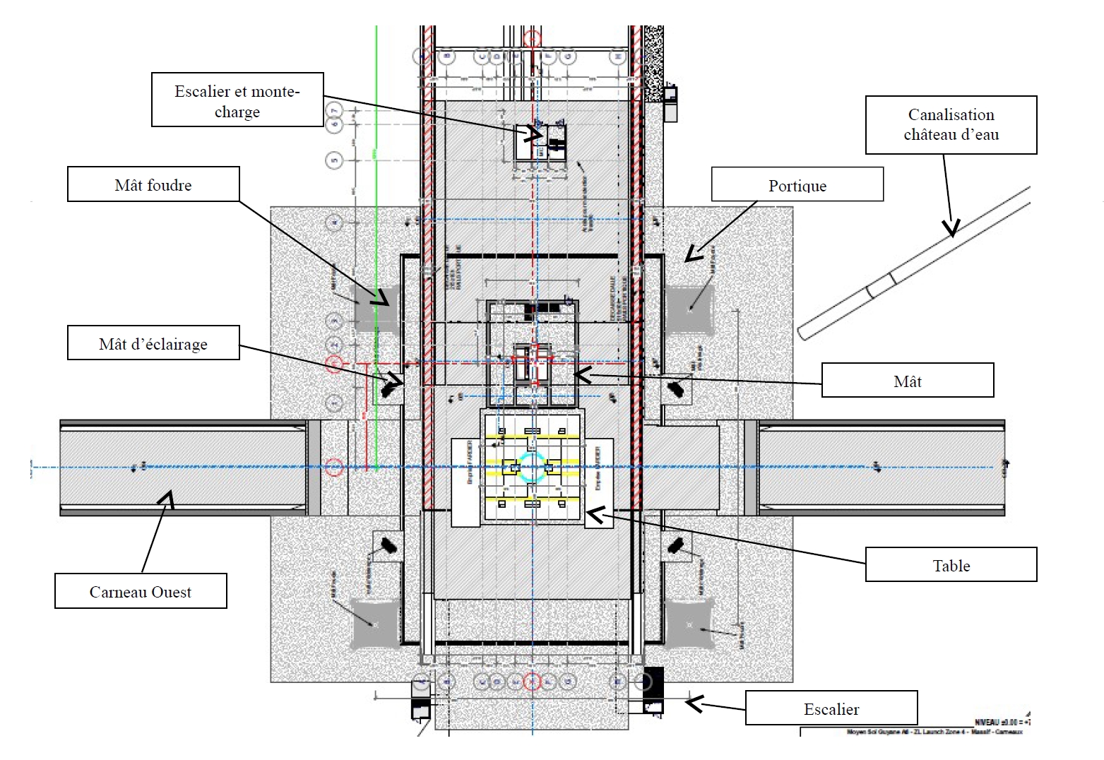
ELA 4, Le Centre De Lancement n° 4

 

L'ELA 4, Ensemble de Lancement Ariane est le 9ème pad de tir construit par le CNES au CSG : Véronique, Diamant, Europa II, Ariane = ELA1, ELA2, ELA3, ELA4, Soyouz-ST et Vega.

La décision de l'ESA de construire le pad pour Ariane 6 remonte à décembre 2014. Il se situera vers l'Ouest entre les pads Ariane 5 et Soyouz. La ZL 4 est déplacée de 500 m suite aux études de sol. ArianeGroup et le CNES est deviennent l'autorité de conception et le maitre d'oeuvre en aout 2015. 600 millions d'euros sont investis autour de 46 entreprises menés par le groupe Eclair (Eiffage) pour la première tranche de travaux, le lot Infrastructures (200 millions d'euros). Fin 2015, l'assemblage d'Ariane 6 à l'horizontale est finalisée, supprimant le concept de table de lancement mobile et d'une voie ferrée avec une zone de croisement et d'un second bâtiment d'assemblage. Un seul bâtiment assure l'assemblage du corps central Ariane 6 à l'horizontale avec initialement 3 lignes, 2 d'intégration et une de stockage. Début 2016, pour des raisons de couts, le BAL devient avec 2 lignes en référence. Mi 2016, le plan d'opération est finalisé avec pour des raisons de sauvegarde, la mise en place des boosters ESR après celle du corps central, la verticalisation et la pose du la table du corps central, en présence des ESR est plus risquée en cas de choc entre les boosters et l'étage. L'assemblage des ESR avant le corps central était pour ArianeGroup une souplesse pour le plan d'opération en ZL vis à vis de l'arrivée des boosters sur la table de lancement. La sécurité l’a emporté c’est pourquoi le choix n°1 a finalement été fait.

Innovation par rapport à l'ELA 3, la table de lancement est désormais fixe, l'intégration du lanceur est horizontale, comme le Soyouz, ce qui économise un bâtiment par rapport à Ariane 5. Une Ariane 6 devrait décoller toutes les 2 semaines au lieu de 2 mois pour Ariane 5.

Vue aérienne du site en juillet 2021 avec à gauche, la ZL regroupant le massif de lancement (table et mat), le portique, le château d'eau et le stockage LOX et LH2. Au centre le bâtiment d'assemblage lanceur et à droite la zone de servitude avec sa centrale d'énergie (4 MW), centrale d'eau glacé pour la climatisation et centrale de potabilisation.

Les habitations les plus proches se situent à 14 km, il s’agit des habitations établies au niveau de la route du Dégrad Saramaka à Kourou et au niveau du Carrefour Changement à Sinnamary. Les bourgs communaux les plus proches sont situés à 20 km au Nord-Ouest (Sinnamary) et à 17 km au Sud Est (Kourou). Les Etablissements Recevant du Public (ERP) les plus proches se situent à environ 1 km (Site d’observation Colibri dédié uniquement au lancement Soyouz et non accessible pour des raisons de sécurité lors lancements d’Ariane 6) et à environ 7 km (Sites d’observation Agami et Toucan dédiés aux lancements Ariane 5 et Vega) de l’ELA4. Ces espaces, en plein air, sont soumis à la règlementation des ERP bien qu’ils ne soient pas en accès libre pour le public.
La voie d’accès à l’ELA4 est la route de l’Espace, la RN1, voie déclassée dont le propriétaire est le CNES. Cette voie est ouverte au public coté Sinnamary du carrefour Changement jusqu’au portail de la Malmanoury et coté Kourou, du rond-point du Globe jusqu’au poste de garde Orchidée. L’accès est restreint aux uniques porteurs de badge entre le poste de garde Orchidée et le portail Malmanoury. La route d’accès permet de circuler en toute sécurité. Le trafic de matériels (conteneur de stockage d’ergols, charges utiles, petite pyrotechnie, …) se fait sur cette route et peut momentanément perturber le trafic local. Des dispositifs de sécurité et d’information sont alors mis en place pour  garantir la sécurité : panneau d’affichage à l’entrée de la base, blocage de route par agents de la sureté-protection, encadrement des convois spéciaux par motards de la gendarmerie et véhicules de signalisation, etc.

Le site ELA 4 comporte les installations suivantes

Au Sud :
_
L’entree principale avec un poste de garde 3837 filtrant les entrees et sorties,
_
Une zone de préparation (ZP4) comportant :
   _une centrale de productio
n 3842 d’eau glacee et d’eau chaude pour la climatisation des installations,
   _ le poste électrique 3845 répartiteur haute tension,
   _ la station eau incendie et station de potabilisation 3849,

 A l’Est à proximité de la Roche Nicole, une zone technique comportant :
_
La station de pompage 3862 alimentant les reseaux d’eau incendie, d’eau industrielle et d’eau potable,

Au centre :
_
Le Batiment d’Assemblage Lanceur 3821 (BAL),
_ La station de traitement des eaux de carneaux 3833,

Au Nord : la Zone de Lancement n°4 (ZL4) comportant :
_ Un massif 3821 en béton abritant les locaux techniques électriques et fluides nécessaires au lancement,
_ Les 2 carneaux en béton déflecteurs de jets des moteurs ESR et LLPM allumés au décollage,
_ Un portique mobile 3820 abritant le mât ombilical fixe et le lanceur sur sa table de
lancement, et permettant d’effectuer les operations d’integration des ESR, les operations de contrôle du lanceur et le hissage des charges utiles encapsulées,
_ Quatre mâts foudre assurant la protection du lanceur contre la foudre lorsque le portique est en position reculée en phase de chronologie de lancement,
_
Une prise d’air neuf 3832,
_ Trois shelters optique vidéo 3828-3829-3830 (caméras sauvegarde vol et caméras techniques utilisées pour la phase de décollage du lanceur),
_ Un mât météo,
_
Un chateau d’eau 3834 assurant la fonction deluge lanceur au decollage,
_ La reserve d’eau de rincage 3832 du portique apres lancement,
_ Une zone de stockage 3828 des réservoirs semi-mobiles (RSM) LOX,
_ Une zone de stockage 3827 des RSM LH2 et propane,
_
L’aire de brulage (piscine) des ciels gazeux des reservoirs hydrogene des RSM et des réservoirs du lanceur.
_ Un accès et une voie spécifiques pour le transfert des matières dangereuses depuis ou vers
la route de l’Espace

Les opérations de contrôle et de commande du lanceur en chronologie de lancement sont déroulées depuis le Centre de Lancement n°3 (CDL3) moyennant une adaptation Ariane 6. Le CDL est à environ 4 km de la ZL4. Une drop zone helicoptere (DZ) est amenagee a l’exterieur de l’ELA a proximite de l’entree principale. Le transfert vers le BAL des etages cryotechniques dans leur conteneur s’effectue depuis l’entree principale de l’ELA4.

Le BAL et la ZL4 sont reliés par une voie routière permettant l’acces en vehicule a la ZL et le transfert à l’horizontale du BAL à la ZL du composite cryotechnique (des étages LLPM et ULPM assemblés).
Les canalisations des fluides eau, air, azote, helium, les cables d’energie electrique et courants faibles sont
fixés sur un rack couvert et fermé. Ce rack est posé le long de la voie desservant la zone arrière, le BAL et la ZL4. Le transfert en ZL4 des matières dangereuses ESR, RSM LH2, RSM LOX, charges utiles sous coiffe est effectué sur une voie lourde dédiée.
Les étages cryotechniques LLPM et ULPM sont produits en Europe, transférés en conteneur en Guyane par
bateau jusqu’a l’appontement de Kourou puis par voie routiere jusqu’au BAL en empruntant la route de l’Espace. Ils sont ensuite déstockés dans le hall de livraison puis transférés au pont dans le hall d’integration pour etre integres a l’horizontale sur un bati specifique. Le corps central ainsi assemble est ensuite positionne au pont sur un chariot erecteur pour etre transferer en ZL a l’horizontale, puis verticalise et positionne sur les ESR.
Les ESR sont produits en zone propulseurs et stockés dans le nouveau bâtiment de stockage des boosters BSB (bâtiment hors périmètre ELA4). Ils sont transférés en ZL4 par fardier en position verticale sur une
palette et empruntent la route de l’Espace a partir du poste de garde Karouabo. Ils sont ensuite successivement pré-positionnés sur la table (avant le transfert du corps central du lanceur) par translation de la palette du fardier vers la table, puis assemblés au corps central.
Les charges utiles sont préparées dans les Ensembles de Préparation des Charges Utiles (EPCU S3 et S5)
(Batiments exploites par le CNES/CSG). Elles sont ensuite transferees dans le hall d’encapsulation du BAF (BAF HE) (bâtiment exploité par ARIANESPACE), puis une fois assemblées sous coiffe, elles sont transferees en ZL4 au moyen d’une plateforme routiere charges utiles (PFRCU). Le composite superieur (charges utiles sous coiffe) est ensuite hissé au pont pour être assemblé sur le lanceur.
Les RSM LH2 et LOX sont transférées sur remorque spécifique depuis leur usine de production respective
(usines exploitees par ALSG) jusqu’en ZL4 en empruntant la route de l’Espace.

 

 

Le site s'étend sur 150 hectares clôturés avec quelques hectares en extérieur, par exemple, la Roche Nicole (pompage d’eau), entre ELA3 et ELA4 pour l’enfouissement de lignes fluides conventionnels depuis Air Liquide. 18 hectares représentent les bâtiments et les plateformes (4 plateformes ont été nivelées pour accueillir respectivement le pas de tir, les réservoirs d'oxygène et d'hydrogène liquide et le bâtiment d'assemblage éloigné de 600 mètres du lieu d’où décolleront les futurs lanceurs). Il est situé sur le site de la Roche Nicole, sur la route de l'Espace qui relie Kourou à Sinamry, traversant le CSG. Au Nord, se trouve le pad des Soyouz et au Sud, Ariane 5, à 6,5 et 3,5 km.

C'est sur un sol granitique de 100 hectares que repose le pad. 900 000 m3 de matériaux ont été déplacés por réaliser les  carnaux d'évacuation des flammes, creusés à l'aide de mines. Les carneaux, orientés E-O mesure 18 mètres de haut et 16 m de large pour 25 m de profondeur. un château d'eau de 90 m de haut assure le déluge d'eau pour atténuer le bruit sur le pad au décollage (1300 m3 d'eau sous 8 bar de pression).

Le processing d'Ariane 6 sur l'ELA 4: par bateau arrive l'étage LLPM et ULPM, qui sont dirigés vers le BAL, les 2 demis coiffes, les adaptateurs CU et le Sylda qui partent vers le HE du BAF. Les satellites arrivent par avion et rejoignent les bâtiments S5 du CSG. Les boosters ESR sont fabriqués sur place à l'usine UPG et équipé dans les annexe du BIL et l'EFF. Les différents ergols sont fabriqués sur place et livré à l'ELA4 par camion. Le corps central Ariane 6, la partie haute et les boosters ESR rejoignent le pad de tir en vue de la préparation du lancement.

Le pad, ou massif est réalisé en béton. Il est entouré de 4 mat parafoudre et 4 mat d'éclairage. Ce massif abrite toutes les servitudes du lanceur. Il supporte la table de lancement et la base du mat. Le niveau 0 correspond au portique. Le massif descend sur un niveau à -6 m. Le massif comporte principalement une zone process où sont regroupés les lignes et les différents organes du process LH2 et LOX et une zone servitude comportant des locaux techniques dans lesquels sont disposes les différents systèmes : énergie, courants faibles sécurité, telecommunication, fluides, climatisation, bancs contrôle commande relies au centre de lancement, baies clients charges utiles. Le massif est équipé de quatre escaliers encloisonnés et d’un monte-charge. Ces escaliers debouchent directement a l’extérieur au niveau 0 par un édicule. Les locaux hydrogène du massif sont étanches et inertables a l’azote avant la mise en oeuvre de l’hydrogène. Le massif est a atmosphere controlee (hygrométrie 45% < HR%< 65% et temperature 22°C< T°C< 26°C). Au niveau des carneaux, la structure descend à presque 30 m dans le sol, sur 6 niveaux et s'étend sur 95 m en longueur et 60 m en largeur.
 

Le portique, comme pour le Soyouz assure la protection du lanceur et sa mise en place sur la table ainsi que celle de la partie haute contenant les satellites, grâce à 16 plateformes. Il mesure près de 90 m de haut, pèse 8200 tonnes. Monté sur roues et rail et mue grâce à 128 moteurs, il recule de 140 pour le lancement, à raison de 7,4 m/mn. Pas de climatisation, comme dans le massif, la température ne monte qu'à 26° régulée par un système de volet mobiles provoquant de légers courants d'air.

Les 2 stations de stockage des propergols sont de part et d'autres du pad, au Nord et au Sud-Ouest, éloignés de 300 m. Le BAL, bâtiment d'Assemblage Lanceur est lui au Sud à 920 m.

La construction du site s'est étalée sur 6 ans, avec 55 000 m3 de béton coulés, 6500 t de charpentes métalliques, 15 km de canalisations mis sous terre.
 

Le chantier ELA 4 en chiffres 

600 personnes mobilisées, dont 75 % de personnel local

Plus de 20 000 m² de planchers

Plus de 15 000 m² de toitures

Plus de 35 km de fourreaux pour câbles

Plus de 8 km câbles haute tension enterrés

Plus de 3 MW de puissance à froid

300 000 m3 de carneaux (l’équivalent de 150 piscines olympiques)

14 tirs de mines pour creuser les carneaux

 

En octobre 2016, MT Aerospace AG et sa filiale MT Mechatronics GmbH ont reçu la commande du CNES, l'agence spatiale française, pour développer, construire et assembler les structures et les systèmes du site de lancement et du port spatial. MT Mechatronics a confié à Donges SteelTec GmbH l'ingénierie, la fabrication et l'assemblage de la table de lancement et du mât d'alimentation. L'ensemble est réalisé en acier. En raison des exigences de déformation, le S235 a été utilisé dans une large mesure pour le mât, tandis que le S355 a été principalement utilisé pour la table. Des plaques d'appui en S690 ont été utilisées sur les supports.

LA TABLE DE LANCEMENT

La table de lancement pèse 740 tonnes et mesure 20,0 m x 18,0 m x 3,8 m. Elle est composée de 13 grands caissons de 72 tonnes mesurant 8,3 x 4,8 x 3,8 m et 8 structures support de 12 t mesurant environ 4,3 x 2,4 x 2,5 m. Elle sert à soutenir le lanceur, permettre les connexions électriques et fluides entre le lanceur et le sol, abriter les process fluides nécessaires au remplissage du lanceur en ergols grâce au MANG, et résister aux ambiances du décollage du lanceur Ariane 6. Elle sert également de support pour les ESR.

La table comporte des galeries, des locaux et des caissons abritant les liaisons bord – sol permettant de
connecter et remplir le lanceur. Les locaux hydrogène de la table sont étanches et inertables à l’azote avant la mise en œuvre de l’hydrogène.

       

       

5 ouvertures, une au centre pour l'étage inférieur et 4 pour les boosters ESR assurent le passage des gaz d'échappement du lanceur au décollage. Les caissons tout autour assurent les différentes liaisons fluides, gaz, pneumatique et électrique du lanceur via les 2 caissons MANG. Les conduites d'alimentation de la structure en béton à la table de départ sont acheminées à travers une hotte en métal qui relie la table au mat.

La table Ariane 6 avec les 2 MANG de l'étage inférieur, LH2 coté mat, à gauche et LOX à droite

La table et le mat support ombilical ont été fabriqué par a été construite MT Mechatronics et Donges SteelTec GmbH, à Darmstadt et Mannheim et ont rejoint le port d'Amsterdam, Au Pays Bas par voie fluviale. L'ensemble a ensuite rallier la Guyane par bateau affrété par Kubler. Débarqué au port de Kourou, les éléments de la table ont été amené vers le site ELA 4 par camion remorque et assemblés à 150 m du pad. l'ensemble a ensuite été posé sur 2 transporteur Kamag de la société belge SARENS speciaux venus d'Europe multi roue et roulé au dessus de la fosse principale du pad. Les éléments du mat, livré par camion ont été assemblé sur le pad.

       

       

   

Les 8 structures supports ou piliers de table assurent le calage des 4 palettes de transport jaunes (25 t) des boosters ESR qui glissent le long de rail de circulation de chaque cité de la table. Sur ces palettes de transport sont posées les palettes dites "martyres", 36 t qui restent jusqu'au décollage, les palettes de transport sont retirées une fois l'ensemble posé. Les 2 caissons MANG assurent l'alimentation en carburant, fluides, électricité, gaz, pneumatique du corps central Ariane 6.

   

Palette "martyre" vue de dessus et de dessous dans l'EFF

 

Vue aérien du massif et des 2 maquettes d'ESR posés sur la table pendant la construction. Le booster en haut monté sur sa palette a été roulé sur la table. On aperçoit un bout de la palette de transport (jaune). Le booster est en position d'attente, pas encore collé au corps central d'Ariane 6. Le boosters du bas est en position de lancement, on voit la palette de transport à demi sortie.

    

Vue d'une palette de transport chargée sur le fardier AIT 250. En bordure de route, 3 palettes martyres. Les palettes de transport sont équipées de galets à motorisation électrique assurant la fonction roulage, de vérins électromécaniques assurant une fonction monte/baisse.

Un des support pour les palettes sur la table, au centre la fosse Vulcain 2. L'étage CCA6 avec le LLPM et le ULPM est suspendu au dessus de la fosse Vulcain, il n'est retenu que par les ESR. L'étage arrive en premier sous le portique et est hissé par le pont roulant au dessus de la table. Il est juste posé sur des chandelles en attendant l'arrivée des ESR. Ces derniers sont glissés sur la table puis resserrer autour du corps central. Les chandelles le soutenant sont enlevées, et le CCA6 descendu pour assemblage. La partie haute (coiffe et charges utiles) arrive par la suite.

Les dessous du massif avec devant le haut du déflecteur et 15 mètres plus la table, le tout encadré par les murs des carneaux large de 16 mètres.

   

Le déflecteur de flammes sur le site Tchèque de MCE lors de sa construction en 2018

 

LE MAT OMBILICAL

Le mât ombilical haut de 66 m de haut assure l'asservissement en propergols de l'étage supérieur ULPM et la ventilation de la partie haute, la coiffe avec la charge utile. Le centre de la table est à 16 m en bordure du mat. Les 6,20 m inférieurs sont intégrés dans la structure en béton du massif de lancement, les 60 m supérieurs sont constitués de caisson carré creux de 7,5 m de section. Chaque parois est rigidifiées par des raidisseurs plats verticaux en acier et des brides annulaires. 17 caissons composent le mat, livrées sur site par bateau et camion. 3 sections sont ainsi montées à chaque fois. Le mât est ancré dans le massif sur des murs d'un mètre d'épaisseur et de 20 m de haut.

Les bras alimentant l'étage supérieur sont à 37 m de hauteur. La charge importante sur le mat à ce niveau est transférée à la structure d'ensemble à travers une sous structure à l'intérieur du mat. Long de 14 m pour 19 t, ils assurent le remplissage en propergols et la pressurisation de l'étage. Nouveauté par rapport aux autres Ariane, ils se décrochent du lanceur en temps positif, c'est à dire au décollage. Un système de contrepoids assurent leur retrait en 3 secondes comme les caissons MANG de l'étage de base. Construit par le consortium Latesys, ils ont subit en France près de 250 essais à Istres dans le Sud avant d'être envoyé en Guyane.

Des ouvertures plus grandes sont nécessaires à l'arrière du mât pour l'introduction et le remplacement de divers équipements. Les éléments muraux aux dimensions 1800 x 3600 mm sont démontables et doivent être vissés étanches au gaz lors de l'installation. Le poids total de la structure en acier est d'environ 430 t.  

 

L'alimentation des étages LLPM et ULPM en ergols cryogéniques (LH2 à -250°C et LOX à -180°C) est assurée par des caissons MANG, Manchette d'Avitaillement Nouvelle Génération. 2 Caissons assurent l'alimentation au sol de l'étage core LLPM. Haut de 10 m et pesant 100 tonnes, ils sont disposés de part et d'autres du corps central, assurant l'alimentation en fluides et ergols, LH2 coté mat ombilical et LOX à l'opposé. Ces caissons remplacent les LBS et PCP d'Ariane 5 sur l'ELA 3. L'ombilical est en 2 parties, une "bord" boulonnée sur l'étage et une sol qui se déconnecte au décollage. 2 boulons explosifs, appelés PAKS en assurent l'assemblage. Au décollage, des pyro-actionneurs crées la force nécessaire pour tirer les bras, induisant un couple pour casser les PAKC

   

L'étage LLPM a besoin de 8 MANG en référence, 4 de grands diamètres dédiés aux remplissage des réservoirs et à la pressurisation, 2 de petits diamètres pour la purge du moteur et 2 autres de petits diamètre pour le "chill-down", la mise en froid, réduisant les vannes de mise en froid  présentes sur Ariane 5. L'ouverture des bras sera "simple", utilisant la gravité et la redondance, en doublant tous les mécanismes et le nombre de contre poids. Pour les caissons, les flexibles et canalisations seront récupérés à l'intérieur des caissons et protégées par une casquette hermétique métallique grâce, la aussi à des contrepoids. C'est la société Latesys à Sainte-Foy d'Aigrefeuille, à coté de Toulouse qui les a fabriqué.

MANG LOX de l'étage LLPM

Pour l'étage supérieur, ULPM, les MANG sont au bout de 2 bras de 20 tonnes à 37 mètres du sol qui se rétractent du lanceur au moment du décollage. Le MANG LOX est coté ouest, le MANG LH2 coté Est.

Au bout des bras, les MANG de l'étage ULPM, LOX et LH2

  

Panneaux de contrôle Latesys blanc et noir, CCAVO" (gauche) vs "CCAVH" (droite) acronymes de marquage à la main près des traversées de cloison des tuyaux.

   

Ils apportent également l’hélium nécessaire à la pressurisation des réservoirs, et l’hélium et l’azote pour le conditionnement. Leur rétraction est assuré par un système de contrepoids de chaque coté. Ils mesurent chacun 13 mètres, contre 10 pour les bras d'Ariane 5. Cette différence permet d'avoir un cône de de dégagement plus grand minimisant le risque de collision du lanceur avec les structures du pas de tir. Cette distance de sécurité entre le lanceur et le mât tient compte de tous les cas possibles de trajectoires dégradées, en raison d'un fort vent ou d'une dissymétrie de poussée par exemple, notamment pour la version à quatre boosters.

MANG LOX et LH2

 

L'ensemble du système de ravitaillement en hydrogène liquide et en oxygène liquide  a été construit par la société Allemande Schwanner. Cela comprend les canalisations isolées sous vide VIP représentant 1300 mètres avec des diamètres de 8, 6 et 3 pouces.

La zone de stockage en oxygène liquide LOX et gazeux GOX est situé au S-E du pad et celle en hydrogène liquide LH2 et gazeux GH2 du Nord. Les canalisations oxygène arrivent coté Ouest du mat ombilical (bleu-violet), celle hydrogène coté Est (vert-jaune). De là, elle alimentent le mat et les bras cryogéniques pour l'étage supérieur et les MANG de la table pour le corps central.

LES INTERFACES AR6-SOL

LES CARNEAUX

Les 2 carneaux, immenses tunnels inclinés à 38% par rapport à l'horizontale canalisent et évacuent les flammes et les gaz du décollage d'Ariane 6. Mesurant 180 m de long au total pour 20 m de haut et 20 m de large, ils sont disposés symétriquement de part et d'autre du massif de lancement. Ils doivent subir plusieurs contraintes, thermique, calorifique et abrasives. Grace au déluge d'eau, le parement de béton n'est soumis qu'à une température de 1000°C au lieu des 3000 en sortie de moteur. L'onde acoustique sollicite les montants des carneaux, avec une pression au sol de 10 tonnes/m², atténué par le déluge d'eau.

Chaque carneau mesure près de 6 m e long pour 18 m de section en sortie

Chaque décollage, le fond intérieur des carneaux subit une abrasion due aux gaz très corrosif des moteurs ESR, très chargés en particules d'alumine. Ejecté à 1000 m/s, ils désagrège le parement , lui faisant perdre 5 mm. Une surépaisseur sacrificielle de 15 cm de béton légèrement armé est ainsi prévue sur les parties d’ouvrage exposées à ce « sablage » intensif. De quoi résister à trente tirs de fusée. « Au-delà, il faut “recharger” le parement. »

   

Réalisé en béton (30 000 m3, les 2 carneaux s'étendent sur 180 mètres avec une épaisseur de 1,2 m constitué d'un ferraillage en conséquence, 400 kg par m3, soit 4400 t au total, modélisé en 3D. Leur forme inclinés a nécessité l'emploi d'un outil de coffrage sur mesure. D'une masse totale de 46 t, ce plateau coffrant couvrait une surface de 200 m2. « Chaque radier (dalle au sol) était bétonné en 10 phases de 7,7 m de longueur », les voiles, c'est à dire les murs porteur ont quant à eux été coulés via deux coffrages grimpants d’une masse unitaire de 25 t, permettant de réaliser des portions de voile de 5,8 m de hauteur et 12 m de longueur d’une seule traite. Enfin, les dalles supérieures des carneaux ont été réalisées grâce à deux tables coffrantes de 120 t à peau métallique, montées sur une structure tubulaire ripée sur rails. La hauteur des ouvrages va de moins 30,5 jusqu'à 21 m.

Le fond des carneaux en construction. Les eaux polluées par les gaz de combustion du lanceur (eau du deluge et eau pluviale) sont collectées a l’aide d’un caniveau ceinturant une surface d’environ 50m x 100m et transferees par gravité dans une fosse de 1700 m3 situee au fond du carneau (sous la grue). 2 pompes de relevage de capacité unitaire de 500 m3/h permettent de transférer rapidement ce volume d’eau vers le bassin de decantation de la station de traitement. Il est a noter que les pompes sont situées dans la fosse.

Les carneaux de l'ELA 4 sont très différents des carneaux de l'ELA 3 d'Ariane 5, le béton en fibré et non réfractaire, les angles ne sont pas brut mais arrondis pour canaliser au mieux le flux. En étant symétrique à 180° par rapport au lanceur, ils permettent de mieux gérer les interférences sonores et vibratoires lors du décollage en éliminant les nombreux déphasages d'ondes comme sur l'ELA3.

Le déflecteur en métal est posé au fond du carneau, sous la table de lancement. Son épaisseur est de 8 cm sur le dessus. 6 buses d'eau sont montés sur le dessus pour le déluge d'eau au décollage.

Après plusieurs essais en laboratoire et in situ, l'équipe locale de la société CHRYSO/SAM a mis au point un mélange béton comprenant un superplastifiant, CHRYSO Fluid optima 224 et des microfibres synthétiques, Fibrin 1950D. Approvisionnés depuis l’usine du cimentier ARGOS de Cayenne, les bétons possèdent une classe de résistance C40/50 et une classe d’exposition XA3, intégrant un ciment CEM I 42,5 N SR3 PM. Ils contiennent des fibres polypropylènes qui, en fondant sous l’effet de la chaleur des tirs, créent un réseau de microcavités dans le matériau, permettant à l’eau de s’évaporer sans y créer de fissuration. Vu les volumes et les cadences importants de production, les bétons ont été produits directement sur site dans une centrale ad hoc, puis convoyés par des camions malaxeurs (deux à demeure, et deux en appoint) sur le lieu de coulage avant d’être mis en œuvre à la benne ou à la pompe.  Le climat tropical de la Guyane a quant à lui nécessité des précautions particulières, non pas tant vis-à-vis de la chaleur que de l’humidité.

       

 

LE DELUGE EAU

       

Mise en place de la canalisation principale d'eau du système de "déluge" dans le massif de lancement, diamètre 2,5 m 

L'entrée sous terre de la canalisation principale d'eau venant du château d'eau

   

Deux rangées de 20 buses sont disposées de part et d'autre de la table coté Est et Ouest, soit 40 buses et 2 rangées de 16 buses coté Nord et Sud du massif, soit au total 76 buses.

Le déluge d'eau sur la ZL4 se fait par gravité depuis la chateau d'eau, près du pad. Le contrôle commande du système 'Déluge', est entièrement réalisé par la société espagnole GTD dans le cadre du projet IPSO Fluides, et est composé de 5 armoires de contrôle installées dans le 'Massif'.

La pulvérisation d'énormes volumes d'eau sur la rampe de lancement et sous la table de lancement protège à la fois le lanceur et ses charges utiles en absorbant et en déviant l'énorme énergie acoustique générée au décollage. Les ondes de choc créées lorsque les gaz d'échappement du moteur dépassent la vitesse du son et entrent en collision avec l'air ambiant font que les niveaux de bruit atteignent 180 décibels.

Trois zones sont inondées d'eau lors du lancement, cela se fait dans l'ordre.
T- 20 s, l'eau est pulvérisée sur le déflecteur en acier à 25 mètres sous la table de lancement. Ce déflecteur canalise les gaz d'échappement du moteur dans les deux tranchées.
T- 6 s, la fosse d'échappement sous la table de lancement est inondée. Cela canalise les gaz d'échappement du moteur sous la table et dans les carneaux.
T- 0, 4 rangées de buses sur les côtés de la table de lancement inondent la table de lancement. Après le lancement, toute eau restante sous la table de lancement est pompée, et retraitée. Les boues consécutives aux résidus des ESR sont récupérées pour être retraitées en Métrople.

   

   

Le château d'eau, d'une capacité de 1300 m3 d'eau est alimenté par une station de pompage dans le lac de la carrière désaffectée de la Roche Nicole, à 1,5 km à l'Est du site. Ce lac (d’un volume de entre 870 et 875 000 m3) est le résultat final d’une carrière de roche massive taillée dans des formations granitoïdes compactes et peu ou pas fracturées. Une canalisation de 2,5 mètres de diamètre y descend jusqu'au massif de lancement, alimentant la canalisation principale sous la table de lancement sur 200 mètres. Le château d'eau mesure 92 m de haut pour 14 m de base. Il a été construit en béton avec coffrage glissant en 5 mois. Il est alimenté par la station de pompage de la Roche Nicole. Sa capacité est de 2.600 m3 dont 1.400 m3 stockés dans un réservoir à 80m de hauteur et 1.200 m3 stockés dans la canalisation. Après chaque décollage, une station de traitement dépolluera les eaux et les boues collectées au fond des carneaux. Les eaux traitées seront relâchées dans la nature après des analyses certifiant qu'elles ne présentent plus de risque pour l'environnement.

En phase de lancement, les principales sources de bruit proviennent du fonctionnement des moteurs des propulseurs, moteur Vulcain et ESR. Bien que ce bruit ne puisse pas être maîtrisé, il ne représente pas un environnement sonore important. En effet, l’exposition se fait sur une durée très courte (un pic durant quelques secondes). Des campagnes de mesures d’émissions sonores ont été réalisées sur les trois lanceurs actuellement mis en oeuvre au CSG et permettent d’avoir un ordre de grandeur sur les émissions. Ariane 6 s'apparente à Ariane 5 avec des niveaux  similaires. En effet, le niveau sonore induit par le lancement d’une Ariane 5 est compris entre 100 et 110 décibels lorsque l’on se situe entre 5 et 15 km de la Zone de lancement (ZL), et 68 décibels lorsque l’on se situe à 20 km (ZL).

 

LE PORTIQUE

   

Premier projet de portique en 2016, 48 m de large, 89 m de hauteur pour une masse 5000 t environ.
Largeur de porte 18 m, pont roulant de 40 t à 77 m de hauteur
Cages ESR suspendues avec 3 plateformes mobiles (attaches basses, corps ESR et attaches haute, à 4,5, 15,5 et 23,5 m). 4 plateformes accès lanceur, jupe interréservoirs CCA6 (31m), MANG ULPM (36,5m), POP basse et POP partie haute (55m). En 2017, une 5e plateformes est rajoutée pour le lanceur puis une 6e dans le projet final.

Le portique mobile réalisé par Eiffage métal/SEH sert pour le montage et la protection du lanceur. Il mesure 56x58 m de base et 89 m de hauteur pour une masse roulante de 8200 tonnes dont 7100 de charges permanentes et 1100 tonnes de charges d’exploitation. Il assure 3 fonctions principales : la verticalisation du corps central du lanceur, la manutention du composite supérieur du lanceur et l‘accès au lanceur pour sa préparation avant le lancement. Le portique est translaté sur une voie de roulement de 140m de longueur (2x2 rails) pour libérer la zone avant le lancement. Ce bâtiment comporte 48 plateformes mobiles et 2 cages mobiles pour les boosters.

Le pont roulant de 40 tonnes servant pour la verticalisation du corps central Ariane 6 et de la partie haute, la coiffe.

   

La structure du portique en construction à gauche et vue "fish eye" depuis la base du portique montrant les cages ESR suspendues à la structure.

6 niveaux de plateformes mobiles horizontale permettent un accès complet au lanceur sur la table.

   

        .

Les cages mobiles pour les ESR se déplacent du fond du portique vers l'avant au niveau de la table. Chacune comporte 3 plateformes se déplaçant horizontalement pour entourer les boosters du sommet à la base.

Le portique est équipé de 16 boggies de 41 t chacune. Chacun est équipé de 8 roues avec un moteur électrique. Au total, 128 moteurs électriques automatisés avec motoréducteurs électriques (32 variateurs) synchronisent les 128 roues le long des 141 m de roulage entre le mat et l'aire de parking à la vitesse de 7,4 m/s.

Les portes supérieures mesurent 42 mètres et celle inférieure 30 mètres

           

 

LE SYSTEME DE PROTECTION FOUDRE SPF

Les pylônes de protection foudre et le SPF, Système de Protection Foudre servent à évacuer la foudre, afin de protéger le lanceur lorsque le portique mobile est en position arrière et ne peut plus le faire. En effet, quand Ariane 6 se trouve sur la table de lancement, à l’intérieur du portique en position avancée et portes fermées, elle est protégée contre la foudre par la structure métallique du portique. Mais, quelques heures avant le lancement, une fois que le portique métallique s’est retiré, la fusée chargée en propergol, hydrogène et oxygène devient vulnérable au risque de foudre.

Une cage conductrice, composée de pylônes interconnectés par un système de câbles tendus en acier est alors agencée autour du lanceur. Lorsque la foudre gronde et que l’amorçage ciel-terre se profile, les impacts sont capturés par l’équipement protecteur, les empêchant ainsi d’endommager le lanceur. L’objet à protéger est placé entre les 4 pylônes qui sont reliés en partie basse par des câbles de cuivre enfouis dans le sol et munis chacun de pattes d’oie chargées d’évacuer la foudre.

 

En partie haute, les pylônes sont aussi reliés entre eux par un système de câbles formant un carré. Dans le cas d’Ariane 6, le CNES, guidé par les recommandations de l’Office national d’études et de recherches aérospatiales ( ONERA ), a préconisé de resserrer le maillage aérien autour du lanceur ( les pylônes étant plus espacés qu’à l’accoutumée ). Pour que ce maillage soit plus efficace, un losange a donc été incrusté à l’intérieur du carré. Afin de tester l’efficacité du dispositif, des essais à l’échelle 1/ 10, puis à l’échelle 1, ont été réalisés dans l’usine normande du fabricant de pylônes. Une partie d’un SPF y a été reconstituée pour vérifier les calculs, avant le montage définitif sur le pas de tir.

Lorsqu’il s’élance dans le ciel, le lanceur s’arrache de la table de lancement en étant susceptible de s’éloigner légèrement de son axe, au sein d’un cône de déboîtement. Pour qu’il n’entre pas en collision avec les câbles du SPF, le dimensionnement, les calculs statiques et la position du losange prennent en compte une distance de sécurité avec les limites du cône de déboîtement de la fusée lors du décollage.

En résumé, ArianeGroup définit le niveau de protection et le cône de déboîtement à prévoir, tandis que le CNES et l'ONERA se chargent de mener l’étude de définition. Responsable du SPF, la société Clemessy a  réalisé la figure géo-métrique retenue, ainsi que les calculs statiques lui permettant de savoir comment la réaliser et avec quels matériaux. À l’issue du montage in situ, les mesures de caractéristiques géométriques réalisées en fonction de l’emplacement dans l’espace ont permis de confirmer les calculs statiques des études menées en amont par Clemessy.

CHIFFRES CLES DU SPF

Le SPF est constitué de 1 330 m de câble en acier galvanisé à chaud

• 11 cantons/segments de câbles + 1 losange (soit 4 cantons/segments supplémentaires)

• 26 segments de câbles liaisons/connexions

 

ECLAIRAGE ZONE DE LANCEMENT

Le pad de tir est pourvu de 4 mâts d’éclairage, munis chacun de 3 rampes équipées de 5 projecteurs, soit 15 projecteurs par mat, 60 au total. L’éclairage doit permettre aux caméras rapides qui scrutent le pad de tir d’inspecter le lanceur sous tous les angles et dans les moindres détails, de jour comme de nuit. Il rend aussi possible l’observation du moment crucial où les liaisons ombilicales se détachent du lanceur à quelques secondes du décollage ( images utilisées en cas d’expertise ), ainsi que les prises de vues de prestige à des fins de communication.

L’implantation des mâts d’éclairage, qui sont situés dans l’emprise des pylônes de protection foudre qui les protègent, ne doit pas interférer avec le mouvement du portique. Une implantation des 4 mâts en rectangle a donc été retenue à la place de la géométrie initiale en carré qui entrait également en conflit avec les multiples réseaux souterrains. Le lanceur se trouve au centre de ce rectangle, dont chaque angle est équipé d’un mât.

Les 15 projecteurs de chaque mât éclairent un quart du rectangle et chacun d’eux se concentre sur une portion du lanceur, assurant ainsi l’uniformité de l’éclairage. Le lanceur est éclairé de haut en bas, à 360°, et les faisceaux de lumière qui sont orientés vers le ciel se croisent à 120 m d’altitude, afin de pouvoir l’éclairer avant et pendant le décollage.

Le réglage de chaque projecteur est unique et se fait selon 3 dimensions. Chacun d’eux reçoit un premier réglage en fonction de l’élévation des rampes ( à 20, 21 ou 22 m du sol ), un second réglage par rapport à la verticale descendante ( inclinaison 90 ) et un troisième réglage en regard de l’axe de l’objet cylindrique à éclairer ( Rotation dans le plan X / Y ). Le réglage de chaque projecteur se répercute symétriquement sur le mât opposé, ce qui signifie que le dispositif d’éclairage global nécessite 60 réglages différents dans l’espace. Les réglages se font sur mâts couchés, afin d’éviter les interventions à plus de 20 m du sol. Au moment du lancement, les mâts d’éclairage, comme l’ensemble des infrastructures, sont soumis à de violentes vibrations. Les platines sur lesquelles sont fixés les projecteurs sont donc reliées à un système de plots anti-vibratoires pour éviter la casse. Pour mesurer l’efficacité de l’éclairage et son uniformité à diverses altimétries, un luxmètre a été installé sur un drone opéré par l’entreprise Sentinel, " photographe officiel " du chantier. L’allumage et l’extinction de chaque projecteur se font à distance depuis le centre de lancement qui supervise les opérations, grâce aux automates programmés par Clemessy. L’Indice de rendu des couleurs ( IRC ) a également été pris en compte lors de l’étude d’éclairement.

ECLAIRAGE DE L'ELA 4 EN CHIFFRES

Le lanceur est éclairé à 360°

• Éclairage moyen sur toute la surface du lanceur : 300 lux demandés avec un coefficient d’uniformité supérieur à 0,5 ( même à 120 m de haut )

• 60 projecteurs de 2 000 W chacun ( soit 120 kW au total ) ou l’équivalent de la consommation d’un immeuble de 20 appartements

• Flux lumineux de chaque projecteur : 226 000 lumens ( soit 13 560 000 lumens au total )

• 6 types d’optiques de projecteurs différents ( pour un éclairage intensif, semi-intensif, semi-extensif, extensif ... )

• Lors des essais, le faisceau lumineux a été aperçu à 20 km de la zone de lancement

 

LES STOCKAGES PROPERGOLS

Des canalisations et des tuyaux parcourent le sous sol du pad, sous la table, le mat pour se diriger vers les installations de stockage carburant, fluides et gaz. La galerie amenant le LOX fait 400 mètres de long. Aucune ne sort en surface, tout est en galerie. La zone de stockage LH2 est au Nord du pad, derrière le portique avec la piscine, celle du LOX au S-E devant la ZL. Les lignes d'alimentation arrivent par le nord du massif, alimentant le mat et la table. Les ergols cryogéniques sont produits au CSG dans les usines d'ALSG. Ils sont ensuite transférés dans les réservoir semi mobiles, les RSM et rejoignent la ZL dans les derniers jours de la chronologie posés sur des plots en béton. Là, ils sont raccordés à la ZL par une canalisation souterraine. Une piscine assure la récupération des eaux du site et du pad. Une autre piscine bétonnée permet de brûler l'hydrogène liquide et gazeux rejeté pendant les opérations de remplissage des étages et lors de la vidange des étages. Les ergols cryogéniques ne sont pas renvoyés dans les citernes une fois le plein réalisé.

   

Galerie LH2 et LOX qui cours sous le massif de lancement

       

Le stockage LH2 en ZL4 est constitué de reservoirs identiques a ceux utilises pour Ariane 5 :
- 3 reservoirs basse pression (3 bar) (RSM BP 322 m3) dédiés au remplissage du reservoir LLPM,
- 1 reservoir basse pression (3 bar) (RSM BP 322 m3) dédié au remplissage du reservoir ULPM,
- 1 reservoir moyenne pression (RSM MP 100 m
3 7 bar) dédié a la pressurisation des 4 RSM BP (3 bar) et a la mise en froid du moteur LLPM.
- 1 emplacement reserve a 1 RSM dans le cadre d’un éventuel potentiel de croissance.
L’hydrogene collecte durant les operations de remplissage (mise en froid des lignes sol et bord, dégazage, ouverture de soupape…) est brulé dans la piscine de brulage. Les lignes de dégazage cheminent dans une galerie rejoignant le massif a la piscine.

Le stockage LOX en ZL4 est constitué de reservoirs identiques a ceux utilisés pour Ariane 5 :
-
3 reservoirs basse pression (7 bar) (RSM BP 140 m3) dédiés au remplissage du reservoir LLPM,
- 1 reservoirs basse pression (7 bar) (RSM BP 140 m3) dédiés au remplissage du reservoir ULPM,
- 1 reservoir moyenne pression (11 bar) (RSM MP 20 m3) dédié a la pressurisation des 4 RSM BP (7 bar) et a la mise en froid du moteur LLPM.
- 1 emplacement reserve a 1 RSM dans le cadre d’un eventuel potentiel de croissance.
Le LOX collecte durant les operations de remplissage (mise en froid des lignes sol et bord, dégazage, ouverture de soupape…) est deversé sur une aire d’épandage.

   

Zones de stockage LOX au Sud du pad.

Le système LN2 a pour principale fonction le sous-refroidissement de LOX. La production LIN est assurée par l’usine LOX existante exploitée par ALSG. Le reservoir LN2 est stocke sur l’aire de stockage en ZL4. Il est rempli par une citerne routière.

Le système GH2 a pour principale fonction le remplissage de la bouteille hydrogène IGFS (8.57 l, 180 bar) de l’ULPM en ZL4. Le remplissage est réalisé a distance depuis le CDL en chronologie de lancement après evacuation de l’ELA4.

Le système GO2 a pour principale fonction le remplissage de la bouteille oxygène IGFS (8.57 l, 150 bar) de l’ULPM en ZL4. Le remplissage est réalisé a distance depuis le CDL en chronologie de lancement après evacuation de l’ELA4.

Le système Helium 600bara pour principale fonction la preparation et la pressurisation des capacités HP Helium (300 l, 400 bar) des étages LLPM et ULPM du lanceur au BAL et en ZL4. La production de l’hélium 600bar est assurée par l’unité de production de l’usine LOX existante exploitée par ALSG.

Le système Helium 200 bar a pour principales fonctions la preparation, le conditionnement, la purge, la pressurisation et la réalisation des tests fonctionnels des étages LLPM et ULPM du lanceur au BAL et en ZL4 ainsi que l’alimentation des panneaux IGFS GH2 et GO2, et l’alimentation des stockages LH2 et LOX. La production de l’hélium 200barest assurée par l’unité de production de l’usine LOX existante exploitée par ALSG.

Le système Azote 250bara pour principales fonctions la purge, la pressurisation et la réalisation des tests fonctionnels des étages LLPM et ULPM du lanceur au BAL et en ZL4, la pressurisation des ESR en ZL4, l’alimentation des stockages LH2 et LOX, le tore azote de la table ainsi que l’inertage des locaux LH2 du massif, de la table et du mat en chronologie. La production d’azote 250barest assurée par l’unité de production de l’usine LOX existante exploitée par ALSG.

Le système Air comprime 6 bar a pour principales fonctions la ventilation de la coiffe, la ventilation des inter étages lanceur, l’alimentation des systèmes de conditionnement helium et azote des étages lanceur, la commande pneumatique de vannes et le reseau d’air respirable. La production d’air comprime est assurée par l’unite de production de l’usine LOX existante exploitée par ALSG.

Le système Propane a pour fonction l’alimentation des bruleurs de la table réalisant l’allumage du moteur Vulcain. Le propane est stocke dans 2 citernes (4000 l, 8-15 bar) sur l’aire de stockage LH2.

LES SHELTERS OPTIQUE

Les shelters optique vidéo abritent des caméras pour la sauvegarde vol et des caméras techniques utilisées pour la phase de décollage du lanceur. Ils sont au nombre de 3 disposés à 250 mètres autour de la ZL, le Shelter 1, initialement prévu plus près du stockage LOX est dans l'axe optique du Shelters 3 à l'Ouest entre le carneau et le portaique, le Shelter 2 est en face des 2 carneaux au Sud sur la route ZL4-BAL, au niveau de l'accès aux installations LOX et le Shelter 3 près du chateau d'eau à l'Est.

Plan des Shelters en 2016

   

L'état des caméras récupérés dans les Shelters après le premier vol
 
CDL 4 & BANC DE CONTROLE

LE BATIMENT D'ASSEMBLAGE LANCEUR

   

Ce bâtiment en charpente métallique mesure 20.55 m de hauteur, 116m de longueur et 50 m de largeur. Il est divisé en deux zones : une zone de déstockage qui accueille les conteneurs lanceur et une zone d’intégration. Inspiré du bâtiment d’intégration Soyouz (MIK), le bâtiment permet l’intégration à l’horizontale des deux étages cryotechniques, le module inférieur de propulsion liquide (LLPM) et le module supérieur de propulsion liquide (ULPM) pour former le corps central du lanceur Ariane 6. Une fois assemblé, ce corps central est transféré par voie routière jusqu’à la zone de lancement située à 83 m de distance. Le BAL pourra accueillir jusqu’à deux corps centraux, le premier en cours d’intégration et le second en stockage.

    

   

Vue vers les portes du hall de déstockage avec les postes fixes d'assemblage et de stockage du LLPM. La maquette du CCA6 est sur le poste de stockage. Les supports B1-B2 accueillent la partie arrière de l'étage. Les postes E1-E2, l'attache avant. A droite, vue vers les portes de sorties vers le pad avec les postes mobiles G1-G2 et H1-H2 du ULPM

Vue du poste d'assemblage de l'étage LLPM, B1-B2 et E1-E2.

Vue des postes mobiles H1-H2 et G1-G2 de l'étage ULPM.

   

Vue depuis les portes du hall de déstockage, la maquette CCA6 sur son transporteur dans la zone de stockage de l'étage LLPM.

Le chariot de transport AGV du CCA6, réalisé par APCO. Il mesure 5 m sur 6,5 et pèse 75 tonnes, dont 25 pour le camion. Le transfert de l'étage CCA6 vers l'un des 2 postes d'assemblage se fait à l'horizontale par les charriot AGV, coté ZL.

Vue intérieure du BAL avec le corps central d'Ariane 6 en assemblage. L'assemblage se faisant à l'horizontale, les réservoirs des 2 étages sont en légère surpression pour rigidifier les structures lors des manœuvres de déplacement.

 

LA CONSTRUCTION DE L'ELA 4