|
Novembre 2012, la France réussit à imposer le programme Ariane 6 à la conférence de
l'ESA contre l'avis des Allemands préférant maintenir le développement d'Ariane
5 ME.
En décembre, le CNES et l'ESA
présente à
la ministre de l'enseignement supérieur et de la recherche, Geneviève Fioraso,
une maquette d'Ariane 6 mais aussi le plan et une vue d'artiste des
modifications qui seront faites sur le CSG, centre spatial guyanais pour
l'accueillir. Réalisée en impression 3D,
elle propose une configuration "PPH" pour le lanceur, c'est à dire avec
trois boosters à poudre à l'étage inférieur, un booster à poudre identique au
dessus et un étage cryogénique supérieur. Ariane 6, c'est
Falcon à l'européenne. L'objectif : des lancements de 7 tonnes de charge
utile, à 70 millions d'euros d'ici 7 ans. Le tout pour 4 milliards d'euros, pad
de tir compris.
Comme pour Vega, le petit lanceur européen, l'assemblage final d'Ariane 6
serait réalisé directement sur le pas de tir. Ariane 5 est, elle, assemblée dans
un bâtiment puis reçoit les charges utiles et la coiffe dans un autre avant de
rejoindre le pas de tir.


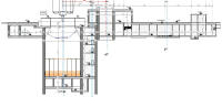
Le plan ci-dessus représente la zone du Centre spatial guyanais qui serait
dédié à Ariane 6. 2 pads de tir envisagés sur l'emplacement de l'ancienne carrière remplie d'eau qui avait
été créée lors de la construction de l'ELA 2.
Le BlCl
(bâtiment d'intégration du composite inférieur) accueillerait tous les étages à
poudre avant qu'ils soient stockés dans le BSE (bâtiment de stockage des
composites inférieurs assemblés). Le dernier étage (cryogénique) ainsi que les
charges utiles seraient assemblés sur le pas de tir. Deux zones de lancement
(ZL4-l et ZL4-2) pourraient être envisagées au regard des fortes cadences
attendues (plus de '12 par an) et des objectifs de disponibilité. Elles seraient
situées au nord de la zone de lancement d'Ariane 5. L'Usine de propergol de
Guyane pourrait être remaniée en profondeur, avec un nouveau procédé de
chargement en continu, ainsi que les usines de production d'hydrogène et
d'oxygène, renouvelées à terme en fonction des besoins de consommation à la
baisse. 2013
L'ELA 4 sera
conçu pour optimiser les coûts d'exploitation et la flexibilité de la mise en oeuvre opérationnelle. Au CSG, le choix définitif du concept devrait intervenir
à fin de l'année. Les travaux commenceront en 2014 jusqu'en 2019. Selon le choix
du concept PPH seront définis le nombre et la nature des bâtiments à construire.
Le site de la Roche Nicole, au Nord de l'ELA 3, une ancienne carrière datant de l'ELA 2 est
pressenti comme lieu d'installation du pad de tir Ariane 6. En effet, le carneau
est réalisé à 70%. La DLA, direction des lanceurs, a dans ses cartons 10 concepts de pad de tir avec des
études sur des bâtiments dédiés au pré-assemblage des lanceurs assurant la
fluidité de l'organisation.



Mai, le CNES espère geler le design d'Ariane 6 avant l'été pour commencer les
travaux sur l'ELA 4 dont le site vient d'être choisit à Kourou.
Le secteur de l’ELA 4 sera sur la savane Karouabo conformément aux critères de sécurité des vols et de synergie avec les
installations existantes. Le site présente le moins de risques vis à vis des populations et des installations
existantes d’un point de vue Sauvegarde Vol.
En effet, le choix est fonction d’une optimisation
de la sécurité par rapport au public pour le lanceur en vol. La zone
est située à équidistance de Kourou et de Sinnamary et permet la
sécurisation des lancements aussi bien vers le nord que vers l’est.
Le site est au plus près des installations existantes pour
bénéficier de certaines synergies notamment sur les servitudes.
Un site à l’Est des ensembles de Lancement actuels
(ELA3) avait été envisagé car il présentait des intérêts économiques
pour le projet mais il ne satisfaisait pas les exigences en matière
de Sauvegarde Vol. Egalement, les anciens pas de tir d’Ariane 4 et
de la fusée Diamant ne peuvent pas être réutilisés pour les mêmes
raisons de Sauvegarde Vol. Enfin, le pas de tir actuel d’Ariane 5
doit être maintenu opérationnel durant le développement d’Ariane 6
pour des questions économiques et de continuité d’activités du CSG
évidente.


Premier projet d'implantation de l'ELA
4 entre l'ELA 3 et la zone Diamant

Le site de l'ELA 4 en juin 2013 en bordure de la
crique Nicole. A gauche, la RN1
est à l'extrême gauche avec au fond la station Diane et le CSG. Sur la photo du
centre, la RN1 est au fond avec la station Diane. A droite, la RN1 est à droite
avec le CSG au fond (ELA 3 et ELV).
Les habitations les plus proche se trouvent à 14 km, au niveau de la route du
Degrad Saramaka à Kourou et au niveau du carrefour changement à Sinnamary. Les
bourg commerciaux sont à 20 km au N-O et à 17 km au S-E. Les ERP les plus proche
sont à 1 km, le site d'observation Colibri pour les lancements Soyouz et à 7 km,
site d'observation Agmai et Toucan pour les lancements AR5 et Vega.
Novembre, les études sur le nouveau
site de lancement d'Ariane 6, ELA 4 sont en cours. La nouvelle base pour le
lancement d’Ariane 6 se situera à 4 km au nord de celle d’Ariane 5. Un parc de 200
hectares a été désigné entre Kourou et Sinnamary au niveau de la savane Karouabo.
Sa particularité de ce lieu est d’être constitué d’un socle granitaire
indispensable pour de tels travaux.
Des études écologiques et géologiques sont actuellement réalisées pour mesurer
les impacts d’une telle activité sur l’écosystème. Elles permettront également
d’éviter les erreurs du passé. L’exemple le plus récent est celui des travaux de
terrassement du pas de tir de Soyouz. Des vestiges amérindiens et des plantes
non répertoriées avaient été découverts. Les résultats de ces études vont être
présentés aux autorités mais aussi au public. Le choix se porte sur la roche
Nicole, une ancienne carrière devenue un lac artificiel. Le diagnostic
environnemental y révèle une étonnante biodiversité. Plus à l'ouest, c'est la
roche Christine qui est choisit. Son granit, de moins bonne qualité, ne peut
être utilisé pour produire du béton. Il sert néanmoins à la dalle et aux
remblais. Le béton sera puisé à la carrière Renner, une carrière du CSG, un peu
plus loin vers Sinamary.


Premier projet ELA 4 avant son déplacement vers le N-O. Il était
prévu un BAL 2.
Décembre, le CNES, l’ESA et
ASL (co-entreprise industrielle Airbus Safran Launchers) signent un protocole
d’accord (Memorandum of Understanding – MoU). Maître d’œuvre du segment sol
Ariane 6, le CNES se voit ainsi confier par l’ESA, maître d’ouvrage du système
de lancement Ariane 6, la responsabilité de la conception et de la réalisation
du nouvel Ensemble de Lancement dédié à Ariane 6 (ELA 4) au Centre Spatial
Guyanais, le port spatial de l’Europe. ASL, de son côté, intervient en qualité
de maître d’œuvre du lanceur Ariane 6.
La décision est prise de déplacer le site ELA 4
vers l'Ouest entre l'ELA 3 et le site Soyouz, prsè de la roche Nicole et du site
d'observation Kikiwi.
2015
L'ELA 4 sera situé entre la carrière Christine et Nicole.
En février, la décision a été prise de déplacer L'emplacement
originel de 500 mètres vers le N-O afin
de réduire les impacts sur 4 espèces protégées et remarquables de la
flore, ainsi
que sur une espèce d'Iris rarissime. De plus, la la zone ELA 4 se
trouvait en partie dans des savanes humides qui auraient nécessité des
terrassements considérables. Le déplacement de l'ELA 4 sur des terrains plus
hauts topographiquement et moins impactant pour la flore est acté par le CNES.
Le nouveau projet impactait encore une zone protégée au Nord Est du site, la
station de traitement des eaux est alors déplacée plus au Sud entre la ZL et le
BAL.

Implantation de l'ELA en avril 2015

Emplacement initial (en gris) et implantation
finale de l'ELA 4
Août, l'ESA signe avec le CNES le contrat de
développement pour Ariane 6 et du nouvel ensemble de lancement d’Ariane 6, 150
hectares sur un socle granitique, le
tout pour 2 milliard d'euros, dont 600 millions pour le pad de tir. Baptisé ELA
4, il est construit par le CNES en Guyane et permettra d’adapter les moyens du
Centre Spatial Guyanais à Ariane 6. Les travaux ont débuté depuis le 29
juin et dureront un an pour le terrassement avec Eiffage et avec une soixantaine de personnes
pour un montant de 14 millions d'euros. Eiffage propose
un traitement des sols en place à base de ciment ou
de liant hydraulique. Cette technique présente de nombreux avantages puisqu’elle
utilise au maximum les sols déjà présents sur le site et donc, limite le besoin
en sable de carrière. Elle réduit aussi les moyens de transport et elle améliore
le bilan carbone du chantier tout en préservant les ressources naturelles et en
limitant fortement l’impact sur l’environnement du CSG. Enfin, elle réduit les
coûts globaux. Par ailleurs, les déchets issus du débroussaillage seront
valorisés à travers l’usine de biomasse de Kourou.


Septembre, Ariane Group Safran confirme la possibilité d'intégrer le lanceur
Ariane 6 à l'horizontale,
comme le Soyouz, le Delta 4 et le Falcon 9.
Le transfert du BAL vers la ZL se fera sur un chariot érecteur, comme le Soyouz.
La table de lancement devient fixe sur le massif ce qui élimine la zone de
croisement de table ZCT. Par contre, les officiels ne savent pas si les charges
utiles seront ajoutés à l'horizontale ou lorsque le lanceur est vertical.
PRESENTATION DE L'ELA 4 EN NOVEMBRE 2015

Le site choisit en 2014 était à l'est de l'ELA 3 d'Ariane 5, à
coté de la zone Diamant. En
2015, il est remonté vers le Nord entre l'ELA 3 et le site Soyouz. L'ELA 4
couvre 1,4 km2 contre 17 pour l'ELA 3 et 1,2 pour Soyouz. L'ELA 4 est en bordure
de la RN1, menant vers le site Soyouz, juste avant le site d'observation Kikiwi.
Les études se termineront fin décembre 2015 et mai 2016 pour un démarrage dans
la foulée.
 |
1.Zone de lancement
2.Zone de préparation avec le bâtiment d’assemblage Lanceur
(BAL)
3.Stockages réservoirs semi-mobiles LOX
4.Stockages réservoirs LH2 avec la piscine de brûlage
5.Zone de traitement des effluents
6.Zone servitudes (Energie, climatisation, eau, station incendie..)
7.Zone de pompage eau (crique Nicole)
Le site est équipé de 4 mats parafoudre et 3 shelters optiques,
un mat météo et un château d'eau
Entrée principale depuis Kourou (poste de garde Orchidée) ou
depuis Sinnamary (poste de garde Malmoury)
Pour les EPR, le site est à 1000 m de Colibri, 8000 de Toucan et
6400 d'Agami |

Ariane 6 sera intégrée à
l'horizontale dans le BAL, bâtiment d'assemblage lanceur. Seul la partie haute,
la charge utile et les boosters sont intégrés à la verticale sur le pad. Le BAL
est long de 120 m pour 35 m de hauteur et 57 m de largeur, avec un hall de déstockage de 2310 m2
(58x57m) pour les containers
premier et second étage et un hall d'assemblage de 5150 m2 (82x57m) avec 2 lignes de production et
une ligne de préparation finale.

Table de lancement AR5 Vs AR6. Celle d'Ariane 6 comme le mat sera
en fixe sur le massif. Le mat sera équipé de bras "cryo" pour l'étage
supérieur et de 2 autres bras pour la coiffe.

Le transporteur érecteur du corps central et la table de
lancement avec les palettes des boosters ESR (en bleu clair).

Les carneaux d'évacuation des flammes situés sous le massif de
lancement permettront d'évacuer les gaz d'échappement des booster ESR et du
moteur Vulcain. Symétrique de chaque coté, ils seront complètement couverts. La
longueur totale des 2 carneaux avoisinera les 180 m pour une section en sortie
de 20 m sur 20. Le volume des carneaux sera de 60 000 m3, l'équivalent de 24 piscines
olympiques. Au fond, à 18 m du niveau zéro sera placé le déflecteur en acier.

Le portique assurera la mise en place des boosters ESR sur la
table en un jour, puis l'érection du lanceur à la verticale avec un chariot du
type Soyouz. Le portique ne sera pas climatisé, la charge utile arrivant
encapsulé sur le pad. Après 6 jours de processing, le lanceur pourra décoller,
le portique étant reculer de 120 mètres. |
29 juin, début des travaux de terrassement. C'est
la société Eifage TP qui assure le chantier pour un montant de 14 millions
d'euros. 60 personnes y participent pour déplacer 1 millions de m3 de terre sur
100 hectares. Il faut aller vite afin que cela soient terminés avant l'arrivée
de la saison des pluies d'ici un an. Aussi, entre poussière et soleil ardent, le
balai des camions des tracteurs est incessant sur le site de la savane Carouabo.
D'ici 2020, échéance prévue pour le lancement de la première fusée Ariane 6,
les travaux de son pas de tir doivent aller bon train. L'ensemble de lancement
s'érigera sur 145 hectares.
Ce chantier augure d'une certaine reprise économique pour le BTP et la
possibilité pour des jeunes d'y être embauchés. C'est déjà le cas pour 13
d'entre eux qui ont démarré une période d'immersion. A terme, ils devraient être
une centaine, formés aux métiers du BTP, à travailler sur ce site.

2016
Mars,
la
configuration à 3 lignes pour Ariane 6, 2 lignes d'intégration et une de
stockage dans le bâtiment d'assemblage BAL ne résiste pas aux études faites pour
le plan d’opération et l’optimisation des couts d’investissement. Le BAL se
retrouve désormais à 2 lignes en référence.



Avril 2016, l'ensemble des travaux de
terrassement se terminent. Les plateformes devant accueillir le pad de tir, les
réservoirs de carburant (LH2 et LOX) et le bâtiment d'assemblage sont
marquées. Un grand soin a été apporté dans l'écoulement des eaux qui doivent
rejoindre la crique Karouabo. La présence d'espèces protégés a obligé les
ingénieurs à modifier l'orientation de l'ELA de 90°. La suite prévoit
l'aménagement du génie civil pour les bâtiments, le carneau et le massif, le
château d'eau et le portique. Après la sélection des prestataires d'ici juin,
les travaux d'excavation du carneau commenceront en juillet. Le carneau
comprendra un grand tunnel linéaire de 200 mètres de long constitué de 2
conduits symétriques à 180° pour évacuer les gaz. Toutes les installations doivent être
finis d'ici 27 mois.
Panoramique du site (PIF@Air&Cosmos)

Le portique sera là (Sylvie Rouat) et le bâtiment
d'assemblage à 600 m.
Juin, le CNES décide de mettre en place les
boosters d'Ariane 6, les ESR après le corps central, CC même si cet ordre
d'assemblage pourra être changé avec le retour d'expérience des opérations des
premiers vols.
La mise en place des ESR après le CC a la préférence de la
sauvegarde car la verticalisation et la pose sur table du CC en présence de 2 ou
4 ESR est plus risquée en cas de choc du CC avec un des ESR. La mise en place
des ESR avant le CC donne, selon Arianegroup, une souplesse pour le plan
d’opération en ZL vis-à-vis de l’arrivée des ESR sur la table de lancement.
(moins de contrainte pour la production des ESR).
_small.jpg)
8 juillet, après appel
d'offres lancé en février, le CNES retient
Eclair6, le groupement ECLAIR 6 emmené par Eiffage pour la réalisation de l'ELA 4. Le
contrat, d'un montant total de 200 millions d'euros, prévoit la livraison de
l'ouvrage en octobre 2018, le premier lancement d'Ariane 6 étant programmé fin
2020. Fin mai Eiffage a livré avec un mois d'avance les terrassements généraux
du site. Le contrat comprend la réalisation de tous les ouvrages de l'ELA4, dont
le massif de lancement avec ses deux carneaux, le portique mobile (6.000 tonnes
pour 90 mètres de haut) et le bâtiment d'assemblage du lanceur (BAL).
L'opération inclut un volet insertion significatif qui permettra l'intégration
de jeunes Guyanais. En outre, plusieurs entreprises locales seront fortement
impliquées, tant en termes de sous-traitance que de fourniture de matériaux et
matériels. Les travaux comprennent la mise en œuvre de 50.000 m3 de béton, 7.000
tonnes d'armatures, 400.000 m3 de terrassements et 7.500 tonnes de charpente
métallique.
1er août, premier travaux de génie civil avec le début de
creusement du carneau et la mise en place des bureaux de chantier.

Vue de la ZL de l'ELA 4 en novembre et décembre 2016.
PRESENTATION ELA 4 DECEMBRE 2016


Plan du BAL avec les 2 lignes de production, un
lanceur assemblé est sur son chariot érecteur, les 2 autres en assemblage. Le
CNES se dirige vers un BAL à seulement 2 lignes une d'assemblage et une de
stockage.

Plan du portique, décembre 2016, la structure est haute de 89 m
pour une surface au sol de 49 m sur 48.
La partie supérieure est profilée (49 m
X 32 m) de manière a réduire le volume intérieur. Sa masse globale (structure,
plateformes, plancher, bogies) est environ de 5 000 t. Le portique est monté sur
boggies motorisées pour effectuer la translation sur rails de sa position avant
permettant d’abriter le lanceur sur sa table et le mat ombilical en campagne,
vers sa position arrière en chronologie de lancement. Il comporte :
- 4 plateformes
mobiles de travail autour du lanceur et 3 plateformes autour des
ESR,
- des locaux
techniques dans lesquels sont disposes les différents systèmes :
energie, courants faibles sécurité, telecommunication, fluides,
climatisation, banc controle commande,
-
en facade Sud : une
porte haute a 2 vantaux s’ouvrant vers l’intérieur et une porte
basse a 2 vantaux s’ouvrant vers l’extérieur pour le passage du
lanceur (arrivée du composite cryotechnique provenant du BAL et
recul du portique) et une porte de chaque cote de la table pour
l’accès du fardier transportant un ESR,
-
un pont roulant de
charge utile maximale 40 t pour le hissage du composite
supérieur,
-
trois escaliers en
cloisonnes débouchant vers l’extérieur et un ascenseur
permettent d’acceder aux différents niveaux du bâtiment,
-
au niveau 0 : 2 issues
au niveau 0 en facade Sud et 2 issues en facade Nord.
En position avant, le portique coiffe le mat. La position
reculée correspond a 130 m de la position avant. Le portique
n’est pas climatisé. Les locaux techniques quant a eux sont
constamment climatisés afin de contrôler l’hygrométrie et la
temperature de l’atmosphère.
Le massif est un ouvrage enterré en béton a un
seul niveau (niveau -6m) et contigue aux carneaux. Il supporte
la base du mat ombilical, la liaison massif – mat est séparée
par un joint de manière a limiter la transmission des vibrations
lors du lancement. Au niveau 0, il supporte le portique mobile,
la table de lancement ainsi que les interfaces mécaniques,
électriques et fluides associés et les différents moyens de
transfert (fardier, plateforme composite supérieur, tracteur de
la table).
Le massif comporte principalement une zone
process où sont regroupées les lignes et les différents organes
du process LH2 et LOX et une zone servitude comportant des
locaux techniques dans lesquels sont disposes les différents
systèmes : énergie, courants faibles securite,
telecommunication, fluides, climatisation, bancs contrôle
commande relies au centre de lancement, baies clients charges
utiles.
Le massif est équipé de quatre escaliers en
cloisonnes et d’un monte-charge. Ces escaliers débouchent
directement a l’extérieur au niveau 0 par un édicule. Les locaux
hydrogène du massif sont étanches et inertables a l’azote avant
la mise en oeuvre de l’hydrogène. Le massif est a atmosphere
controlée.

Les carneaux en béton ont une longueur de 90 m
et une section a leur extrémité de 18x16m. Les eaux polluées par
les gaz de combustion du lanceur (eau du deluge et eau pluviale)
sont collectées a l’aide d’un caniveau ceinturant une surface
d’environ 50m x 100m et transferees par gravité dans une fosse
de 1700 m 3
située
au fond du carneau.
Deux pompes de relevage de capacité unitaire 500
m 3/h permettent
de transférer rapidement ce volume d’eau vers le bassin de
decantation de la station de traitement. Il est a noter que les
pompes sont situées dans la fosse.
La table de lancement est un ouvrage fixe
métallique mécanosoudé d’une masse de 640 t et de dimensions L
20m, l 18m, H 4m, pose et bride sur le massif. Elle est destinée
a recevoir les deux versions du lanceur Ariane 6 pose sur 2 ESR
(A62) ou 4 ESR (A64). Ses principales fonctions sont les
suivantes :
-
soutenir le lanceur,
-
permettre les connexions
électriques et fluides entre le lanceur et le sol
-
abriter les process
fluides nécessaires au remplissage du lanceur en ergols,
-
resister aux ambiances
du décollage du lanceur ARIANE 6,
-
permettre la mise a
poste des ESR.
La table comporte des galeries, des locaux et
des caissons abritant les liaisons bord –sol permettant de
connecter et remplir le lanceur. Les locaux hydrogène de la
table sont étanches et inertables a l’azote avant la mise en
oeuvre de l’hydrogène.


Chaque ESR est acheminé par fardier sur sa
palette et est transféré sur la table par translation de la
palette. Chaque palette est constituée d’une palette dite "martyre"
(masse 36 t) qui voit l’ambiance du decollage et d’une palette
de transfert (25 t) retiree pour le lancement.
Les palettes de transport sont équipées :
-
de galets a motorisation
électrique assurant la fonction roulage,
-
de vérins
électromécaniques assurant une fonction monte/baisse
-
d’une couronne
d’orientation a denture intérieure assurant la fonction de
rotation.

Les caissons MANG LLPM sont des ensembles
mecano-soudes montes de part et d’autre de la table dans l’axe
du mat. Ils ont pour fonction :
-
d’assurer les liaisons
cryotechniques entre le sol et le LLPM. Les lignes sont isolées
et située dans
une enveloppe tirée au vide. Le vide est surveillé. Ces
lignes font l’objet d’un suivi de maintenance.
-
d’assurer la déconnexion
en temps positif,
-
de protéger les
équipements sol de l’ambiance du décollage.
Ils sont constitu és
:
-
d’une enveloppe
métallique extérieure assurant la protection au feu,
-
d’un guide pivotant
supportant les flexibles cryotechniques et assurant la fermeture
du caisson au
décollage (partie orange),
-
d’un bati MANG
supportant l’ensemble des connecteurs,
-
d’un ensemble
d’actionneurs assurant la déconnexion des connecteurs MANG, le
repli du bati MANG et la fermeture du caisson.

Le mat ombilical est un ouvrage métallique fixe
ancré dans le massif de dimension H 66m – L 7.5m – l 7.5m. Il
abrite les systèmes électriques et fluides en interface avec les
parties hautes du lanceur :
-
Conditionnement et
ventilation de l’étage ULPM,
-
Remplissages
cryotechniques de l’étage ULPM,
-
Ventilation du composite
supérieur,
-
Liaisons électriques
avec les charges utiles.
Le mat ombilical est a 16 m (face avant) de
l’axe lanceur. Il est accessible depuis les plateformes du
portique. Ses propres plateformes sont desservies par une
échelle a crinoline interne. Au niveau de l’etage ULPM, le mat
reprend les bras MANG acheminant les lignes cryotechniques et
les lignes fluides conventionnelles au lanceur.
Les principaux réseaux circulant dans le mat
sont les suivants :
-
Fluides cryogeniques
-
Fluides conventionnels
(Eau, Air, Azote, Helium)
-
Eau chaude, Eau glacée
pour la climatisation
-
Eau industrielle,
-
Eau potable,
-
Air de ventilation
coiffe
-
Energie
-
Courants faibles.
L'aire de stockage LH2 ,
au Nord du pad a une capacité de 5 RSM
LH2 bass epression de 322 m3, un RSM moyenne pression de 100 m3
et 2 citernes fixes de propane de 4000 litres (pour l'allumage
du Vulcain). Les ergols cryogéniques sont produits sur les
usines d'ALSG au CSG. Ils sont transférés dans des réservoirs
semi mobiles RSM sur les sites de production des usines ALSG sur
le CSG. Ils sont amenés sur l'ELA 4 quelques jours avant le
lancement et posés sur des plots en béton. Ils sont reliés à la
ZL par une canalisation logée dans une galerie. La protection
incendie est assuré par un système de déluge par eau.
Le brulage des résidus gazeux d'hydrogène est
assuré par 5 piscines (10x7x7m).
L'aire de stockage LOX, au Sud du pad, a une capacité de 5 RSM
LOX basse pression de 140 m3, un RSM moyenne pression de 20m3 et
un réservoir azote liquide de 75 m.
Le chateau d'eau
assurant l'alimentation
en eau du système de déluge sur le pad mesure 100 m de hauteur
et contoent 1200 m3 d'eau alimenté par pompage dans la crique
Nicole. Il alimente lle carneau par une canalisation de 2,5 m de
diamètre. Le chateau assure aussi une redondance contre les
incendies.

Le chariot érecteur est un ensemble métallique
destine a :
-
Transferer a
l’horizontale le CC du BAL vers la ZL4,
-
Verticaliser le CC et le
poser sur les ESR sur la table de lancement.
Le chariot est constitu é
des principaux elements suivants :
-
1. Un chassis
-
2. Une poutre de
verticalisation
-
3. Un ensemble de levage
initial
-
4. Un prehenseur DAAR :
bielles fixees sur les attaches DAAR
-
5. Un prehenseur DAAV :
berceau fixe aux 4 interfaces DAAV permettant d’ajuster la
position finale du CC par rapport aux ESR
-
6. Un préhenseur ULPM :
pince
-
7. Un vérin de levage
avec bloqueur de tige normalement fermé
- 8. Des moyens
d’ancrage
-
9. Un système controle/commande
et groupe hydraulique
-
10. Deux groupes
routiers. La fonction roulage est assurée par des modules
routiers indépendants du chariot.
Le chariot n’est pas autonome, il est alimenté
par raccordement au réseau électrique des zones d’utilisation.
Pour le roulage, les fardiers sont autonomes, et le
fonctionnement du chariot est neutralisé
Arrivée en ZL, le chariot est broché à la table
et posé sur des chandelles à l'arrière avant la levée à la
verticale. Une fois reléve, le corps central est tenu par le
berceau DAAV. Les bielles DAAR sont déposées et les guides DAAR
sont fixés de part et d'aurtre de la table pour sécuriser la
mise en place du corps central sur les boosters ESR.
|
14 décembre, le CNES
retiens le groupement constitué de Cegelec Projets Espace (mandataire),
Telematic Solutions (Italie) du groupe VINCI Energies et GTD (Espagne)
pour la réalisation, les essais et la maintenance des installations
Courants Faibles et Sécurité de l’ELA4 destiné à Ariane 6. Ce contrat
concerne la réalisation de 14 systèmes Courants Faibles ou Sécurité.
Outre le management global du projet, Cegelec Projets Espace se
concentrera sur les systèmes de détection et d’extinction incendie ainsi
que sur le système d’allumage des piscines hydrogène.
21 décembre, le CNES confie au groupement constitué
par Cegelec Projets Espace (mandataire) et Air Liquide Advanced
Technologies la réalisation des procédés fluides conventionnels et
cryogéniques de l’Ensemble de Lancement Ariane (ELA 4). Ce contrat est
le deuxième en volume, après le contrat Infrastructure, des contrats
relatifs à la construction de l’ELA4 de décembre 2016. Le lot Fluides
conventionnels, dont Cegelec Projets Espace est responsable, concerne
les réseaux gazeux Hélium, Azote, Oxygène, Hydrogène et Air, les réseaux
d’eau et déluge ainsi que les systèmes d’analyse et d’interface procédé
avec le banc de contrôle.

Jean-Yves Le Gall (Président du CNES), Corinne Lanièce (DG de Pôle VINCI
Energies France) et François Darchis (Membre du Comité Exécutif d’Air
Liquide)
|