RETOUR A LA PAGE D'ACUEIL

CHRONOLOGIE
SPACE SHUTTLE

LAUNCH COMPLEX 39

EMERGENCY EGRESS SYSTEM

Le système d' évacuation en urgence de la tour, le Emergency Egress System est à 58,5 m de hauteur au même niveau que le bras d'accès à l'Orbiter OAA. Il permet au personnel travaillant sur le bras ou dans l'Orbiter d'évacuer la tour en cas de danger grâce à des paniers suspendus sur des câbles. Chaque panier glisse à 88 km-h sur des câbles et "atterrit"  sur une zone à 360 m à l'Ouest de la tour. De là, le personnel peut rejoindre un bunker de protection ou prendre place dans des chars de protection M113 qui les amèneront sur des lieux sécurisés. Après 1986, le nombre de panier passe de 5 à 7 et le nombre de personnes transporter de 2 à 3 par panier. 

LC 39 emergency syst 01.jpg (42380 octets)   LC 39 emergency syst 10.jpg (92462 octets)

Schéma du système d' évacuation du pad en urgence pour le Shuttle avant 1985

LC 39 emergency syst 21.jpg (176531 octets)    LC 39 emergency syst 22.jpg (178283 octets)    LC 39 emergency syst 23.jpg (101663 octets)

Schéma du système d' évacuation du pad en urgence pour le Shuttle après 1986

Le système appelé "Slide Wire" a été mis en service pour les vols Mercury en 1961 puis sur le LC 34 pour les Saturn 1B. L' astronaute Ron Evans l'a testé en premier en 1968. Pour les Saturn 5, le système est repris. Il est testé en condition réelle le 25 janvier 1969 par Chuck Billings du bureau de sécurité du KSC, l' astronaute Stuart Roosa et Art Porcher ingénieur concepteur. Les astronautes d' Apollo ne l' avait testé qu' à moitié sur les derniers mètres, un échafaudage permettait de faire monter les trois astronautes dans le panier et de glisser jusqu' au système d' arrêt.  

Pour le Shuttle, le système n' a jamais été essayé avec des hommes à bord avant 1988. Des tests avec des sacs de sable avaient été réalisé, des astronautes avaient pris place dans les paniers mais n' avaient jamais réalisé la traversé. La légende raconte qu' à l' époque de Mercury alors que le système avait été installé sur la tour des Atlas à Cap Canaveral, des ouvriers se seraient amusés à faire des descente de nuit et qu' un soir, un accident avait été évité de peu, le panier ayant manqué de s' encastrer dans un camion garé sous le fils près du système d' arrêt. 

       

Essai des glissières du pad 39A en mai 1979 et mars 1980

Exercice d'évacuation du pad en janvier 1981

L'astronaute Joe Engle, backup de STS 1 sur le M113.

1988, 6 juillet, Discovery est sur le pad  39B pour la reprise des vols après l'accident de Challenegr en 1986. L'astronaute Charles Bolden essaie le système d' évacuation en urgence de l' Orbiter sur le pad 39 B. Il sort de Discovery, prend le bras d' accès de l' équipage à 60 mètres du sol, rentre dans la tour de lancement et s' installe dans une des 7 nacelles pour glisser le long d' un câble de 300 m et atterrir finalement à 200 m du pad dans une zone sableuse spécialement aménagée à la vitesse de 80 km/h, le tout en 35 secondes. De là, il rejoint le bunker des astronautes. Ce système qui existe depuis le programme Apollo a été dernièrement modifié et amélioré et testé avec des sacs de sable et des mannequins avant de l' être par un astronaute. Bolden réalise une seconde glissade avec deux ouvriers de sécurité  George Hoggard et Albert Bumgarden. La seule partie du trajet que Hoggard a trouvée énervante est arrivée vers la fin, lorsque le panier a frappé le filet de retenue avec un bang. "C'était comme un coup de fusil", dit Hoggard. "Mais rien ne faisait mal, alors j'ai pensé que j'allais toujours bien." Le filet et la chaîne de traction se sont détachés de leurs poteaux, comme ils étaient conçus pour le faire, et la chaîne a traîné dans le sable pour arrêter progressivement le panier.

   

La zone d'arrivée des paniers et plan du bunker

LC 39 emergency syst 04.jpg (63070 octets)    LC 39 emergency syst 07pd2805.jpg (387813 octets)

Vue de la tour FSS, le départ des paniers. Photos Peter Ailward et NASA

   

L'arrivée des paniers et l'entrée du bunker (photo Padrat NSF 2009)

LC 39 emergency syst 05.jpg (35328 octets)

L' arrivée des paniers, le véhicule de secours M113 et le Bunker. Photos Peter Ailward

LC 39 emergency syst 06.jpg (50847 octets)    LC 39 emergency syst 08.jpg (61280 octets)

L' intérieur du M113. Photos Peter Ailward

LC 39 emergency syst 07.jpg (58124 octets)

L' intérieur du Bunker. Photos Peter Ailward

       

   

L'intérieur du bunker (photos PatRad NSF 2009)

Le blindé M113 en exposition devant le VAB au KSC après l'arrêt du STS en 2011. En cas d'évènements catastrophiques, feu ou autres nécessitant l'évacuation des astronautes de l'Orbiter sur le pad, après avoir glissé dans les paniers et rejoint la zone de sécurité à 360 mètres du pad, l'équipage s'enferme dans ce char blindé. Chaque astronaute a reçu une formation pour conduire cet engin qui peut rouler à 30-35 km/h. D'une masse de 12 tonnes, sa cuirasse est épaisse de 38 mm d'aluminium.

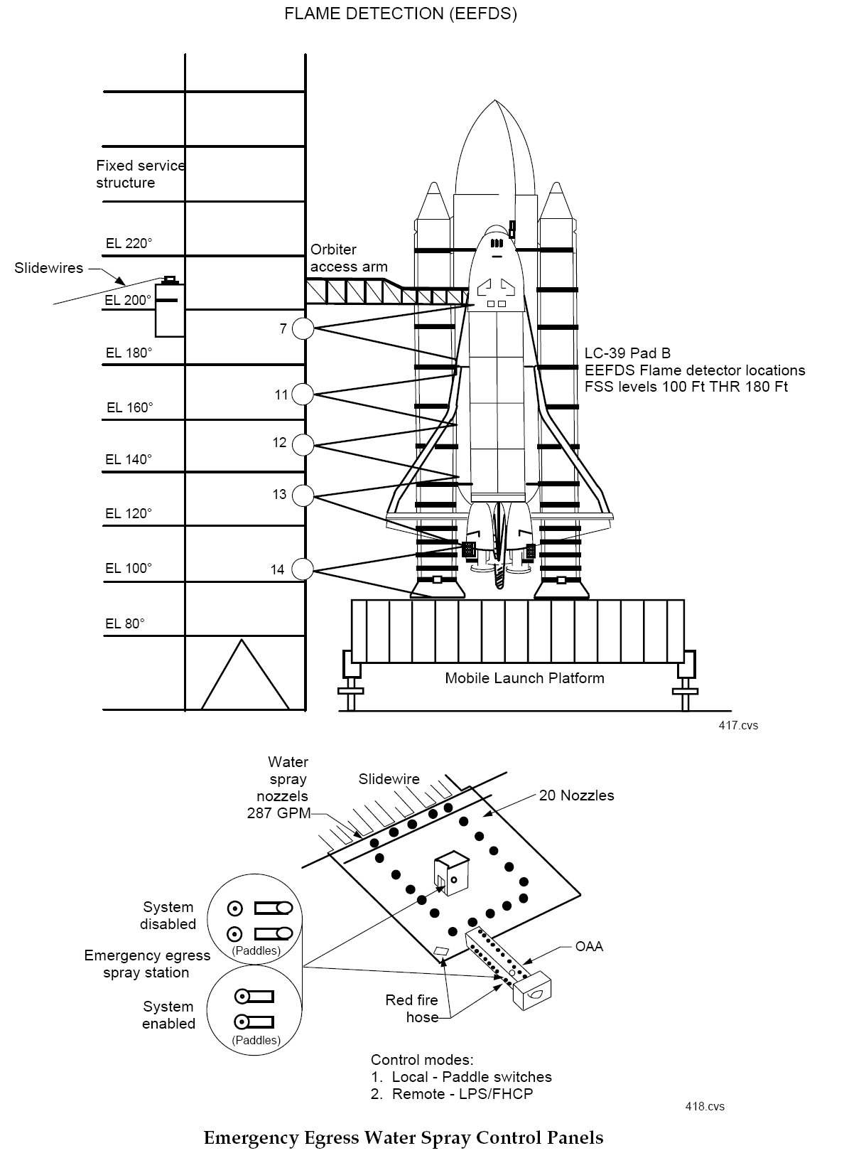
Sur le pad des senseurs  (température et détection UV) permettent de signaler la présence d'hydrogène et de feu (5 détecteurs UV des niveaux 175 à 95 de la tour FSS, 9 dans des zones spécifiques et 10 détecteur de feu) .Un système d'arrosage permet de baliser le chemin menant de l'Orbiter au panier d'évacuation. 20 asperseurs sont sur le bras d'accès et 20 dans la tour. Le déclenchement se manuellement par le personnel dans la tour (interrupteurs dans la salle blanche et près des ascenseurs) ou depuis les consoles du LCC.  

LC 39 emergency syst 24.jpg (205165 octets)

 

LAUNCH COMPLEX 39 TOUR FSS

LAUNCH COMPLEX 39 TOUR RSS

LAUNCH COMPLEX 39 SOUND SUPRESION WATER SYSTEM

LAUNCH COMPLEX 39 SYSTEME OTV

LAUNCH COMPLEX 39 HISTOIRE

FIRE Dpt LES POMPIERS DU KSC

LAUNCH COMPLEX 39 STOCKAGE CARBURANT